Young at heart
This spacious suburban home presents a traditional face to the street, but the interior aesthetic has a more contemporary sense of connection
Building in the suburbs, with the implication of larger sites and peaceful, verdant outlooks, might seem to invite an adherence to traditional forms. But in today's eclectic world of design, even a classic exterior can give way to the clean lines and adroit function of a modern interior.
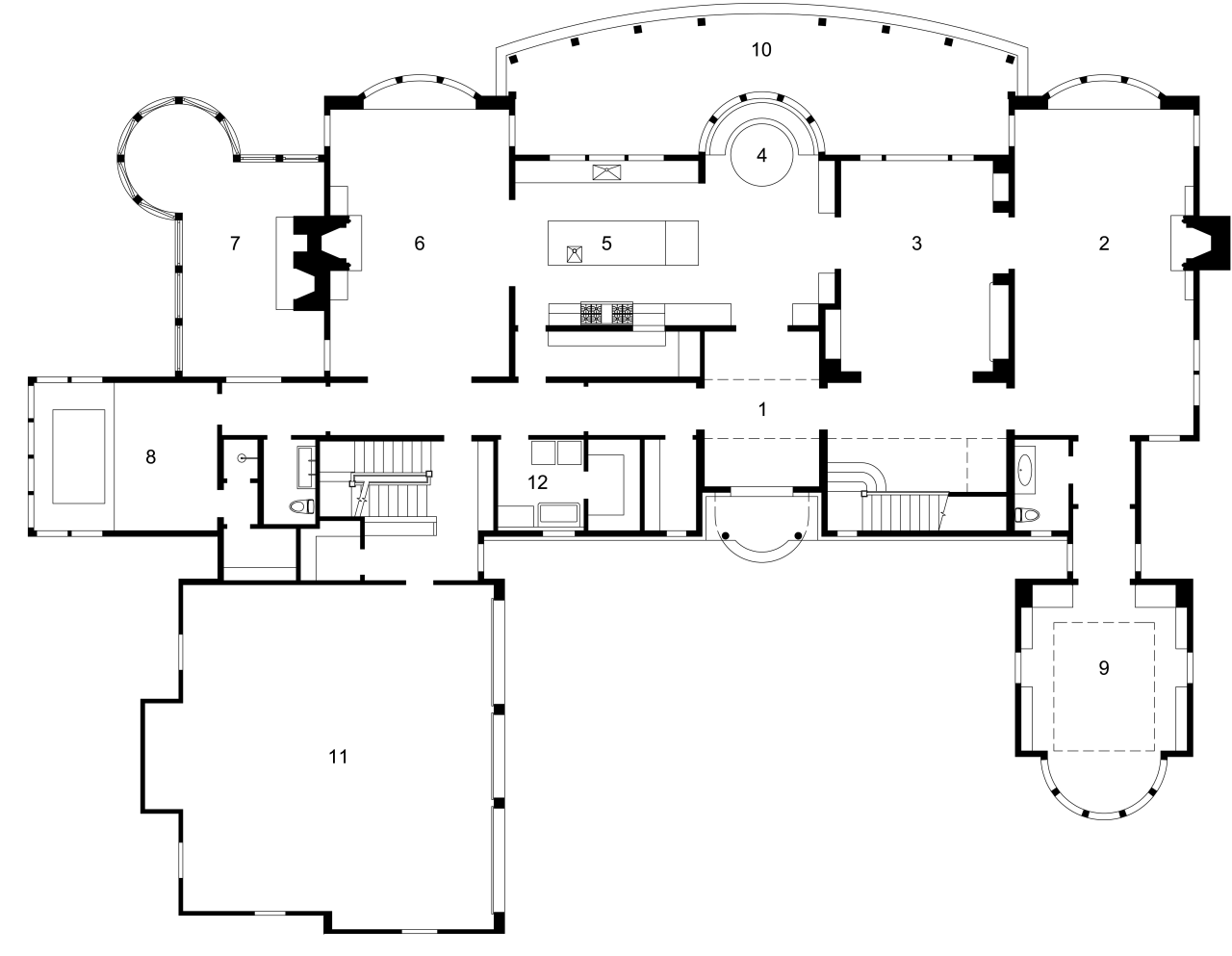
This home, by architect Jim Fraerman and interior designers Anne Kaplan and Bruce Goers, has been built on the site of the owners' previous residence. The original house was set perpendicular to the street, taking advantage of a long, unusually shaped site, with garages the most prominent element when viewed from the pavement. In a departure from this, the new house faces the street, with a central cross axis giving most rooms views down a leafy driveway, or to the expansive yard and pool behind.
Two wings protrude from this central form, with one housing the garaging and the other the family library. These volumes are presented in a way that maximises the front spaces and limits the aesthetic impact of the garaging on the approach the home. The site has a narrow street presence, becoming wider toward the back, which means that the two wings are only partially visible from the road.
"The exterior has a classic family residence sensibility, appropriate to its outer-suburb environment shingle roofs, gables, eyebrow dormers and Palladian windows are some of the contributing elements," says Fraerman. "On the interior, coffered ceilings, high skirting boards and window seats that reflect the architecture of the exterior continue the traditional aesthetic."
However, the interior combines these classic touches with a layout that is more contemporary. The U-shaped home makes a feature of the broad sightlines running through most areas. The open vistas allow the eye to take in the rooms right across the house at a glance. From the front door, for example, guests can look straight to the breakfast nook at the centre-rear of the home.
"The generous doorways and prominent visual connections are not what you might expect from a 1920s interior and serve to maximise the penetration of natural light through the residence," says Fraerman. "This design creates easy connections between living spaces without losing the feeling of individual rooms, contributing to the casual lifestyle that the homeowners enjoy."
The house also offers degrees of separation for the private spaces so important in a family residence. Most of one wing is taken up by the master suite, with the other bedrooms positioned on the opposite side of the house. Guest accommodation is set apart again, in the wing above the garages.
Locating the family room on one side, the living room on the other, and placing the media room downstairs provides further breathing space for both the owners and their children.
With architectural features that represent both the old and the new, the finishes, furniture and furnishings in the residence all accentuate this combination, says Kaplan.
"Wall treatments were an important part of the project, particularly as they can be seen in juxtaposition when looking through different spaces in the house," says the designer. "From the restrained neutral tones in the living room, to the warm, snug brown in the dining room and on to the fresh green of the kitchen and the relaxed cinnamon tones of the family room beyond, the colours separate and differentiate the rooms at a glance."
In terms of furniture selections, the pieces are suitably eclectic as with the house design, they balance the classic and modern. Sculptural form and tonal similarities are common features that draw everything together.
As the front of the home makes the most of views to the leafy driveway and the street, the design also ensures the rear of the home offers maximum opportunities to appreciate the expansive yard and pool.
Looking back from the yard, the house presents a wall of windows. The multitude of fenestrations help to play down the scale of the home's substantial rear facade.
Credit list
Interior designer
Builder
Cladding
Paints
Fireplace
Kitchen manufacturer
Sink
Oven, cooktop and ventilation
Dishwasher
Interior designer
Builder
Cladding
Paints
Fireplace
Kitchen manufacturer
Sink
Oven, cooktop and ventilation
Dishwasher
Landscape designer
Structural engineer
Roofing
Flooring
Decorative lighting
Kitchen design
Benchtops
Taps
Refrigeration
Breakfast table
Landscape designer
Structural engineer
Roofing
Flooring
Decorative lighting
Kitchen design
Benchtops
Taps
Refrigeration
Breakfast table
Story by: Charles Moxham
Home kitchen bathroom commercial design
From farmhouse to farmstead
Walk this way – garden pathways to lead your thinking
Different rooms, same sky-blue ceiling
