Light box
Contemporary Calacatta Gold marble bathroom
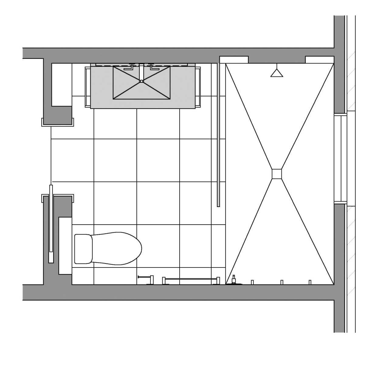
Bathrooms may be private spaces, but sometimes they are right in the sightline of a major axis through the home.
This small bathroom is at one end of a dark passage immediately off the entry hall. Its position was a key factor determining the design of the remodeled space by architect Gregory Thomas of CG&S Design-Build.
"Since the only natural light into the hall is through the door of this bathroom, we needed to ensure the light could still penetrate," he says. "The bathroom also had to look beautiful when glimpsed from the entry hall."
The former cubicle-style layout was rearranged to achieve this. A new large glass-walled shower beside the existing window occupies the full width of the room.
"The entire bathroom is flooded with diffuse light from the translucent glass in the window," says Thomas. "The light shines through a translucent glass door into the hallway, yet the bathroom still provides plenty of privacy."
Calacatta Gold marble wraps the bathroom, with deep recesses in the walls providing glass shelving and storage for linen and other items.
"The walls either side of the door were thickened to accommodate these recesses," says Thomas. "The extra depth also helps to block the toilet from view we tucked it around the corner from the door."
To introduce a sense of substance, the vanity has an extra-deep custom quartz top with integral basin. The quartersawn cherry cabinetry, which has a clear finish, also conveys a look of solidity and permanence. The vanity is cantilevered, which helps make the room appear more spacious.
The marble tiles on the walls and shower are a large format, while hexagonal mosaics in the same marble provide a non-slip floor in the wet area.
Credit list
Architect
Vanity unit
Faucets and shower fittings
Toilet
Ventilation
Story by: Colleen Hawkes
Photography by: Paul Finkel
Home kitchen bathroom commercial design
Reflection and repose
9 tile shapes and finishes that think outside the square
White cloud, blue sky
Trends Vol 30 No 1
Bathroom Trends is dedicated to providing inspirational design ideas, products, services, and information for bathroom b...
Read More
