Grace and balance
Attention to materials, shapes and styles ensures this kitchen responds to its immediate and distant surroundings
The nuances of visual balance in an interior can bring instinctive pleasure. Attention to scale and evenly weighted cabinet pieces will help visitors as well as family feel at home, even if they can't say exactly why.
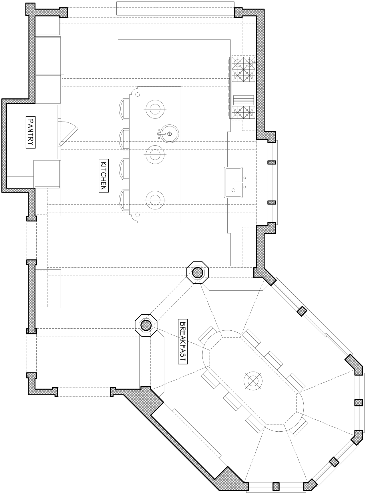
This demure kitchen and nearby breakfast area form part of a run of three rooms at the rear of a classically styled house by architect Jan Gleysteen. The kitchen acts as a through space so the island is positioned as a buffer for the kitchen's inner workings. The design is about symmetry and balance, says Gleysteen.
"The large 60in cooktop is the heart of the kitchen the arch detail makes it look like an old-world hearth. Cabinetry to right and left is bookended by pilasters that form pull-out spice shelves, detailing that is repeated on the island. In addition, the cabinets have an undulating quality some stand slightly proud, while others are recessed."
The architect introduced a box bay window in front of the farmhouse sink, creating space for a deep counter. Bringing the window down to counter height optimizes views to the garden.
"Base cutouts on the sink cabinet are part of a furniture look in the kitchen, suggesting it has been drawn together over time. The mahogany island provides a contrast to the white hand-glazed wall cabinets both in finish and counter depth adding to the gathered-together effect."
The built-up granite island counter features stepped edges and corner bites details which soften the mass of the substantial piece.
"Everything is also subtly scaled the arch over the breakfast counter is built to the height of someone sitting at the breakfast table."
Credit list
Interior designer
Cabinetry
Countertops
Range
Dishwasher
Windows
Dining furniture
Lighting
Builder
Backsplash
Oven
Refrigeration
Kitchen furniture
Wallcoverings
Story by: Charles Moxham
Photography by: Richard Mandelkorn
Home kitchen bathroom commercial design
From farmhouse to farmstead
Walk this way – garden pathways to lead your thinking
Water, water, not everywhere
