Tropical outlook
Making the most of the views and the climate for an easy family lifestyle
Houses in the tropics are typically designed to optimise the lush scenery while moderating the effects of the climate. In any latitude, exterior aesthetics are a priority, but a family residence also needs to offer practical day-to-day living.
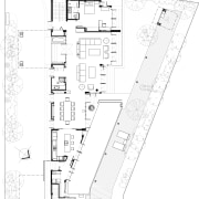
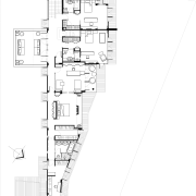
This two-storey family home is set on the edge of a golf course, with views to a lake beyond. The house was designed by architect Shaun Shahrome in response to a request for a family-oriented residence, with large living areas, bedrooms and kitchen, and accommodation for staff. Also required were a children's play area in the attic, a study, and his and hers walk-in wardrobes in the master suite.
However, a highly contemporary aesthetic a common request in Singapore wasn't on the wish list, says Shahrome. Instead, the clients wanted a comfortable, resort-style home, with a strong design response to the local context.
Location and site shape played an important part. The plot is narrow and elongated and this pencil of land allowed the architect to create long frontages on both sides of the home.
"We create a closed-off, private feel for the streetside facade, whereas to the rear of the house facing the garden, golf course and lake we introduced an extensive run of windows."
In addition, the modest site was optimised visually. Introducing mature coconut palms in the rear garden allows the landscaping to merge with the golf course. A timber deck next to the pool stretches from one end of the house to the other, and is well suited for entertaining, another requirement of the owners.
In terms of comfortable family living, the design comprises a layout of airy, spacious and, in many instances, highly versatile rooms.
"The dining area was designed to be opened out or separated off by a vertical lattice door at the kitchen entrance," says Shahrome. "This allows the greater space to be used as a formal or informal dining room."
The configuration means that children can sit at the breakfast counter without distracting adults in the next room. Similarly, soundproof sliders between the study and master bedroom allow one partner to work late, while the other sleeps undisturbed.
Designed for a growing family, the guest bedroom has its own exterior entrance and can be reallocated for use as a teenager's bedroom.
Ancillary spaces such as service areas and a walk-in wardrobe were placed at the end of the home, where it tapers to an angle.
"The interior design is solid and linear, with an emphasis on texture," says Shahrome. "For example, we used timber strip for all the ceilings, rather than the more common and expedient plasterboard."
The house also addresses another important consideration the humid climate.
"When creating a home in the tropics, a number of factors help shape the design," says Shahrome. "Extended roof eaves give shade from the hot sun and cope with the deluge from tropical rainstorms. More shade comes from a timber lattice inset in a glass overhang above the ground floor, and in a skylight in the attic."
Cross ventilation is provided through long vertical windows and French doors, allowing fresh air to circulate through the rooms. The French doors provide a more refined look than expansive sliding glass panels or bifolds.
This residence has a ground elevation of 70cm to maximise the efficiency of the cross ventilation and this contributes to a dramatic entrance. The architect has created an engaging passage and stair leading to the front door, with substantial boulders and a water feature set to one side of the entrance way.
"The resulting design is comfortable and flexible, and meets the needs of a growing family without compromising the ambience of a finely finished, resort-style home," says Shahrome.
Credit list
Builder
Landscape designer
Cladding
Flooring
Paints
Heating
Pool
Control systems
Kitchen designer
Roof
Wallcoverings
Lighting
Furniture
Audiovisual equipment
Story by: Charles Moxham
Home kitchen bathroom commercial design
Reflection and repose
9 tile shapes and finishes that think outside the square
White cloud, blue sky
