Space station
Perched on a tricky site, this home's animated design maximises both space and privacy
Thinking outside the square can be as much an imperative as a metaphor when it comes to designing a spacious, modern residence on a site that has numerous constraints.
This large family home, by architect Eric Cobb, is set only twenty minutes' drive from the central city and has spectacular views but at the same time, it has a sense of seclusion. Part of the reason for this is its ideal location, albeit on a challenging strip of land.
The owner's first question was whether it was possible to build here at all, says the architect.
"It was a reasonable concern the site is narrow and steep, and land-use requirements made it an even more difficult design proposition," says Cobb. "In addition, the client wanted a house that would be both expansive and private."
As it turned out, the client had a few special requirements for larger spaces. In addition to a sizeable open-plan living area, he requested a professional workspace not a tucked-away home office. A restorer of designer boats and cars, he also wanted a large garage, with structural support for lifting and moving the vehicles and vessels.
With this wish list in mind, Cobb set about creating a 400m² residence that would make the best use of the site's natural advantages. But after factoring in all the restrictions, the architect was left with a thin triangular section of buildable land not an ideal starting point.
"Building a spacious, functional home on a three-sided footprint was tricky, to say the least," says Cobb. "However, a loophole in local regulations allows garages to encroach into front yards by up to three metres, and this meant we could break out of the triangular shape.
"Cantilevering the decks on the upper levels also helped us overcome the limitations of the available space and tough geometry."
The house is built predominantly in concrete, steel and timber. Concrete blocks define the entire ground level and rise to contain the half of the first storey with the garage. The concrete on the lower half provides a foundation for the house, and ensures the garage is strong enough to support the vehicle hoists. The other half of the first storey and the full top level are finished in Western red cedar, with exposed structural steel.
With similar shapes, the wood and concrete structures are positioned loosely relative to each other and offset. The looseness of the fit is seen in the overhangs and cantilevers of the home. The building envelope folds in on itself at the main floor to form a semi-enclosed deck, shielded from neighbours. While the living room has full-height glazing to take in the scenery, the sides of the house are largely solid, again to maximise privacy.
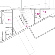
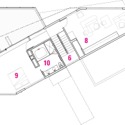
The dramatic slope of the land along the same axis as the street imposed another design restriction. To address this, the architect introduced a large exposed staircase, dividing the interior vertically down the middle. The stairwell brings together the two principal construction materials, provides circulation and negotiates the change in elevation between the garage and the main level.
The change in level and central staircase create a distinct separation between spaces. This is particularly effective on the mid level, where one side of the house contains the garage and the other has the living area, with its very different ambience.
"Every niche, deck and circulation space is designed to be efficient and to create a series of open, flowing spaces," says Cobb. "The only place where the severe triangle shape can still be seen is the ground-floor guest bedroom."
Credit list
Builder
Cladding
Flooring
Lighting
Kitchen cabinets
Splashback
Oven
Microwave
Dishwasher
Structural engineer
Wallcoverings
Heating
Kitchen benchtops
Taps
Ventilation
Refrigerator
Waste unit
Story by: Charles Moxham
Home kitchen bathroom commercial design
Diving into nature
Classic looks, contemporary efficiency
Personality plus
