Contemporary kitchen with views in two directions
Modern galley-style kitchen by Hofman and Brown is social hub of new home, with extra-long island, chunky granite countertops
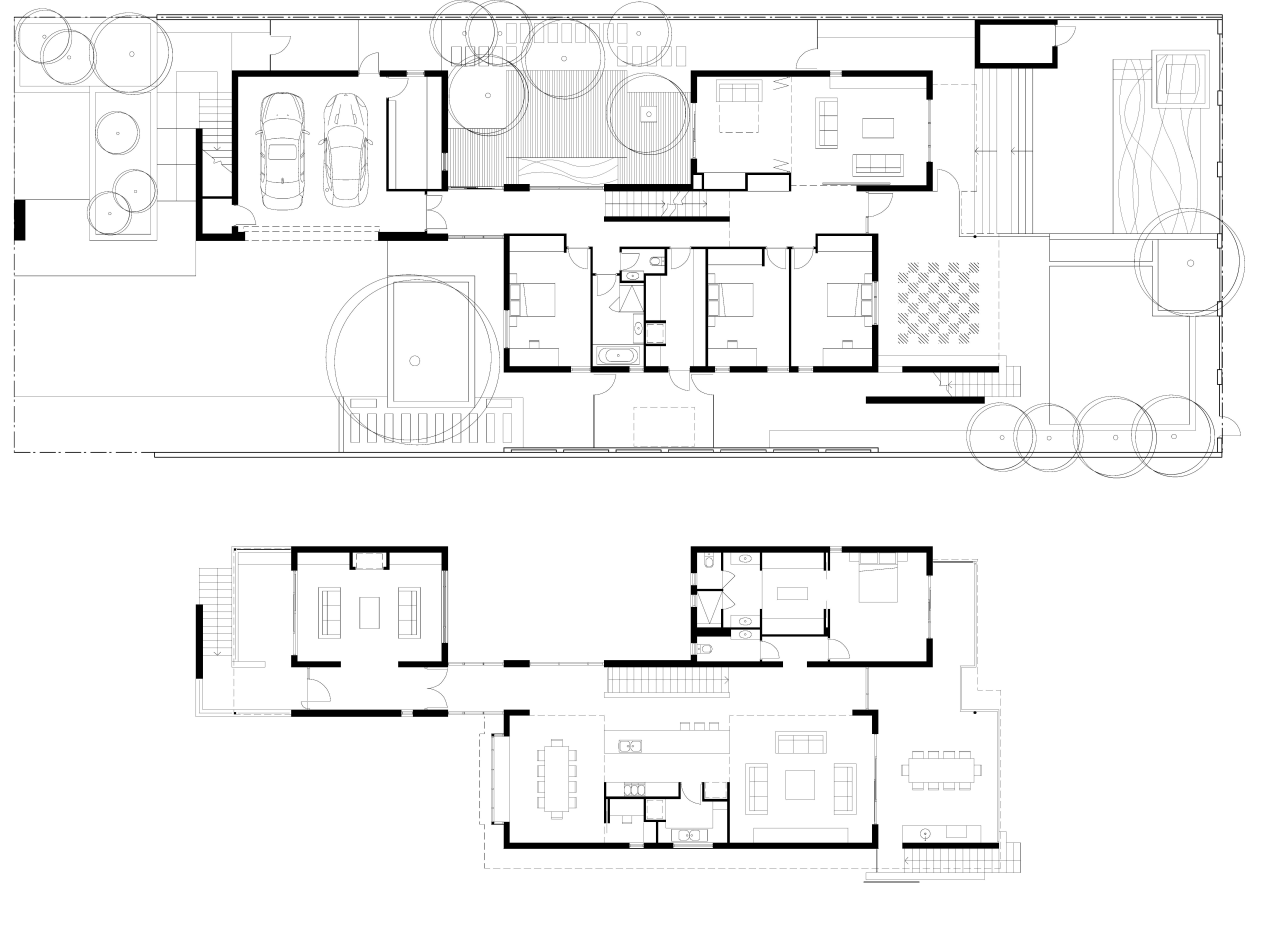
Sometimes the best way to maximise a good view is to design an upside-down house.
This was the solution for a house designed by the team at Hofman and Brown Architects.
The property has views to the south over a golf course, and to the north over the playing fields of a private school.Placing the main living spaces on the upper level of the two-storey house meant the owners could enjoy the views in both directions from the kitchen, dining and living rooms.
To make even more of the outlook, the designers placed the kitchen right in the centre of the home, equidistant from the dining room to the north, and the living area and terrace to the south.
The company says the kitchen is the social hub for the family of five.
"The kitchen is also the place where everyone ends up at parties, so it made sense to give it a very central position."
For this reason, also, the kitchen is deliberately sleek and uncluttered. A seamless 3.6m-long by 1m-wide island defines the main axis from front to back. The island has white lacquered cabinetry, similar to the perimeter cabinets, and a distinctive 100mm Bianco Romano granite top with waterfall sides.
Most of the storage in the kitchen is below bench height, or within the separate scullery. Limiting the amount of overhead cabinetry helps ensure the views are uninterrupted. Similarly, the cooktop and rangehood are positioned out of the way, within a recess against the wall, rather than on the island.
To make it even easier to entertain friends and family outdoors, there is a second kitchen and dining table on the covered terrace overlooking the golf course.
This outdoor kitchen has a stainless steel benchtop with an integral barbecue and sink cabinet. There is also a drinks refrigerator and a hood. Brightly coloured chairs add a quirky, fun element.
Credit list
Kitchen manufacturer
Flooring
Cabinetry
Splashback
Taps
Oven, cooktop and ventilation in main kitchen
Outdoor hood
Story by: Colleen Hawkes
Photography by: Andrew Pritchard
Home kitchen bathroom commercial design
Personality plus
Classic looks, contemporary efficiency
Diving into nature
