Trendsideas
Home kitchen bathroom commercial design
Contemporary new house by Dencity with Egyptian limestone siding
Modern new home in Atlanta by Staffan Svenson features Egyptian limestone exterior, overlapping planes, cut-outs, double-height void living area
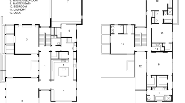
Married to the land vacation home by Architects Dirk Danker and Jim Nagle
This home by Dirk Danker achieves a natural aesthetic
Far horizons
Though situated on a sprawling rural New Zealand site, this property's heart lies on an Eastern shore
Shore leave
Perched atop a cliff overlooking the sea, this contemporary home provides a safe harbor for its inhabitants and their guests
One for every room
From contemporary European-style cabinetry and wall beds to closet and drawer organizers, California Closets teams eye-catching aesthetics with high functionality
Shaped by the land this house by Jim Fraerman is at home in its setting
This house by Jim Fraerman is at home in its setting
Kiwi vernacular
Just as the landscape helps to define the homes we build, so too does a tried-and-true building system
Character plus residence from Stonewood Homes
Solid home by Stonewood, Palliside and Webco Joinery
Penthouse apartment designed by Nicholas Murray Architects
Penthouse unit in Rolo apartments with natural materials including wood floors and stone surfaces