Personal space Classic bathroom remodel by Julia Stainback
Classic bathroom remodel by Julia Stainback
Reinventing a bathroom in a classic residence often comes with a double agenda. While the remodel might celebrate the home's original architecture, there is also an opportunity to weave specific functionality into the design.
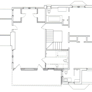
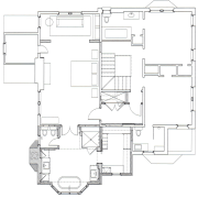
This was the case when the owners asked designer Julia Stainback to replace their cramped, near-windowless bathing space with a large, open master bathroom. The upgrade also had to be more in keeping with the overall grandeur of the Tudor home, says Stainback.
"The main factor, in terms of function, was creating more available space to move the old bathroom was so cramped the couple had to almost turn sideways to pass each other. In the end, we completely rearranged the master suite."
The original bathroom was turned into a foyer adding a sense of arrival to the master suite. A balcony and part of the oversized master bedroom were combined to make the spacious master bathroom.
"In addition, the walk-in dressing room off the bedroom became the his' closet while a larger hers' closet was built off the bathroom."
The relocation of the larger closet improved pedestrian flow and provided a valuable degree of ablutionary separation the couple often have to travel for business and this arrangement allows one to sleep in while the other prepares for early departure.
Another measure to free up movement involved replacing the original shared vanity with separate, individual stations. These are positioned on opposite sides of the bathroom.
Available space directly above the relocated bathroom allowed Stainback to introduce a high central tray ceiling with sloping side panels. This feature together with a bay window brought a light, airy ambiance to the room.
In terms of aesthetics, the color palette was driven by the marble floor selected by the owners. This tone is picked up in a gray wash on the vanity, the solid, rustic ceiling beams and the antique Italian doors between the bedroom and bathroom. The mosaic-tile backsplash and wall finishes are in similar hues.
"The detailing has a classic look. Moldings and wall panels were copied from other areas of the house, and in this larger, brighter room they achieve an appropriate feel for the period. The ceiling beams and antique doors add natural warmth to the environment," says Stainback.
However, the makeover also has transitional accents. The vanities have flat panel doors and the base of the vanity legs and the toekicks are in stainless steel. The alloy brings a touch of modernity and was also a practical inclusion.
"With a baseless shower, water on the floor is always a possibility and so durable stainless steel was ideal for the situation."
The free-standing bath completes a decor that resonates calm, spaciousness and comfort.
Credit list
and provides plenty of room to move Architect
Builder
Tub
Basin
Hot water systems
Bathroom lighting
Window treatments
Interior designer
Cabinet company
Vanity
Faucets
Shower stall
Accessories
Story by: Charles Moxham
Home kitchen bathroom commercial design
2026 TIDA New Zealand Bathrooms – Entry open
2026 TIDA Australia Bathrooms – Entry open
Gilded grove
