Architecturally designed house from the 1960s sympatetically remodelled by Lane Williams
Accentuating the existing form, and with respect to the materiality, this cedar shingle-clad home has been modernized to the highest standards.
No matter how well designed the house, after 50 years a remodel is a likely scenario one that follows through on the existing architecture and factors in the evolution of materials that has taken place in the intervening half century.
This hillside house was designed in 1966 by respected architect Paul Hayden Kirk. The bold, yet compact design featured cedar shingle walls that wrapped over to form the roof. This idea was reinforced on the interior, with cedar-clad walls and ceilings, says Lane Williams, the architect who undertook the remodel of the two-storey structure.
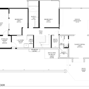
"To create additional space for the owners' growing family, we extruded the plan and stretched the form of the house by 2.5m."
This created room for a third bedroom, a children's bathroom, an office and a media room on the lower level. Upstairs, the entry and living-dining-kitchen area were also expanded.
"It was important that the power of the walls that also shaped the roof was not changed. The original cedar shingle exterior had been long since replaced with a mishmash of corrugated metal and shingles, all in need of replacement.
"At the time of building, in the sixties, cedar shingles were created from slow-grown wood. New cedar shingles come from faster-growing, farmed trees, which are less dense and contain less natural rot resistance. So instead, we chose fibreglass composite shingles for the cladding."
Inside, the extensive cedar panelling had darkened with age and combined with the tall trees that had grown up around the house, cutting off natural light, the interiors had become rather dreary.
"To address this, we expanded the windows, and added a large skylight to replace an old roof monitor, which also smooths out the roofline. In the past, a skylight may have been seen as a leak risk," says Williams. "In this way, the march of time has reaped material benefits."
Credit list
Contractor
Cabinet company
Hardware
Flooring
Skylights
Lighting
Kitchen faucet
Ovens, cooktop, refrigeration, dishwasher
Roof and siding
Cabinetry
Countertops
Wallcoverings
Backsplash
Kitchen sink
Ventilation
Story by: Charles Moxham
Home kitchen bathroom commercial design
Personality plus
Classic looks, contemporary efficiency
Diving into nature
