Trendsideas
Home kitchen bathroom commercial design
Modern spin
on tradition
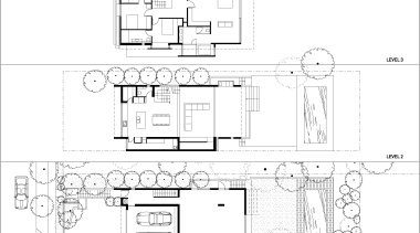
To complement a neighbourhood of heritage properties, this new development presents a contemporary interpretation of a traditional Queenslander
Climate control - Sustainable design influenced this home
Sustainable design influenced this home
Colour your world
A location-inspired makeover has injected vibrancy into this waterfront apartment
Historic bedrock
Located within Australia's first neighbourhood, this new terrace house brings modernity to tradition
On a clear day
A decade-long journey from concept to completion has resulted in a singular property designed to embrace the far-reaching vista from every angle
Home on the range
With its low profile and weathered cedar slats over plywood, this clifftop house hunkers down in the rugged landscape, creating an unobtrusive presence
Northern star rises
One of Europe's largest lifestyle brands has now launched here in Australia Beko is a name to watch
Wall-to-wall warmth Whole-house heating by Chazelles Fireplaces
Whole-house heating by Chazelles Fireplaces
Feel-good factor
Textured linens, silk rugs, warm taupes and silvery creams take the hard edge off contemporary in this waterfront penthouse