Personal design by Hank Houser
This remodel is by owner-architect Hank Houser
Location is the much touted word when it comes to house acquisition and this can be as much about good neighbors as great outlooks.
Architect Hank Houser first discovered this house when it was but a pale shadow of the now reinvented home. However, having friends with children of a similar age to his own in the near vicinity he decided to secure the modest split-level bungalow and transform it.
The first phase of the renovation consisted of a small addition to the front of the house, to enlarge the master suite and provide a new front porch and entry, says Houser.
"The front extension of the house is finished with similar brick and lap siding to the original facade. Clerestory windows were introduced to replace the old jalousie, or slat windows. The high windows optimize privacy and bring natural light into the interior while extended roof eaves prevent solar gain.
"Corner windows were strategically located to permit views out from the new master bathroom while also preserving privacy."
The second stage of the remodel was more far reaching and completed Houser's vision.
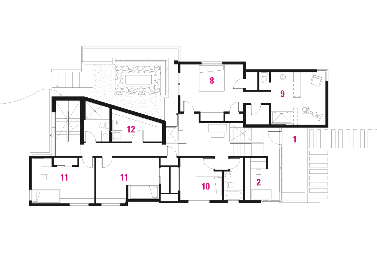
"The first floor of the two-story addition includes a new living room, freeing up space for an expanded dining and kitchen area in the original footprint and a playroom tucked right at the rear of the house," says Houser. "The living room, kitchen and dining all orient to a reinvented central courtyard.
"Upstairs, there are two children's bedrooms, a new children's bathroom and a laundry. A three-level circulation stairwell at the rear of the house leads up to a new roof garden."
The rear addition to the residence marks a design departure in terms of both architectural style and choice of materials.
While brick and lap siding feature where the house facade can be seen by the neighbors, both the interiors and exteriors make generous use of concrete. Exterior tie holes and formwork indentations were arranged and accentuated for aesthetic effect, says Houser.
"For the exposed concrete walls, we used an extra-hard concrete with a small aggregate so that the edges are crisp and won't break or crack. We also replaced 50% of the cement with slag a by-product of the steel smelting process that would otherwise have gone to landfill. This had the added plus of whitening the concrete."
The extension is as dynamic architecturally as it is in choice of material. A picture of tilting wall and roof planes, the articulated add-on is designed to optimize sunlight and intriguing vistas through the house. For example, guests at the front door can look through a long corridor out to an upper-level glass wall with views of the treetops beyond.
"The courtyard and the rooms looking onto it are the heart of the home," says Houser. "We designed a substantial steel and glass window wall with pivoting doors that allows the entire living and outdoor area to work as one. The courtyard bench and living room furniture were situated to underscore this concept."
The new kitchen looks into the dining room and the living area, and is integral to these spaces, says kitchen designer Matthew Rao.
"The kitchen had to strike just the right balance between formality and informality, high design and usability," he says. "When Hank approached me, the old kitchen was open in the middle with two L-shaped banks of cabinetry, one at each end of the space. I recommended introducing the island to split the circulation and help define the center. Now a tall appliance wall houses the refrigerator, oven and storage, while preparation and clean-up areas face public spaces and views to the outside."
An important aspect of the remodel was the introduction of green energy measures. Besides incorporating recycled materials, the house now has solar hot water, high-performance glass, a rain and condensate harvesting cistern, closed-cell polyurethane foam insulation, occupancy sensors and radiant-heat flooring.
Highly efficient mechanical and lighting systems and dual-flush toilets also feature in this comprehensively reinvented residence.
Story by: Trendsideas
Home kitchen bathroom commercial design
Diving into nature
Classic looks, contemporary efficiency
Personality plus
Trends Vol 29 No 5
Home Renovation Trends highlights great residential architecture. This book provides prospective home builders and desig...
Read More
