Open agenda A sympathetic renovation by Linday Small Architects
A sympathetic renovation by Linday Small Architects
Open-plan living is so tied to our modern lifestyle that it is hard to believe it is a relatively recent development.
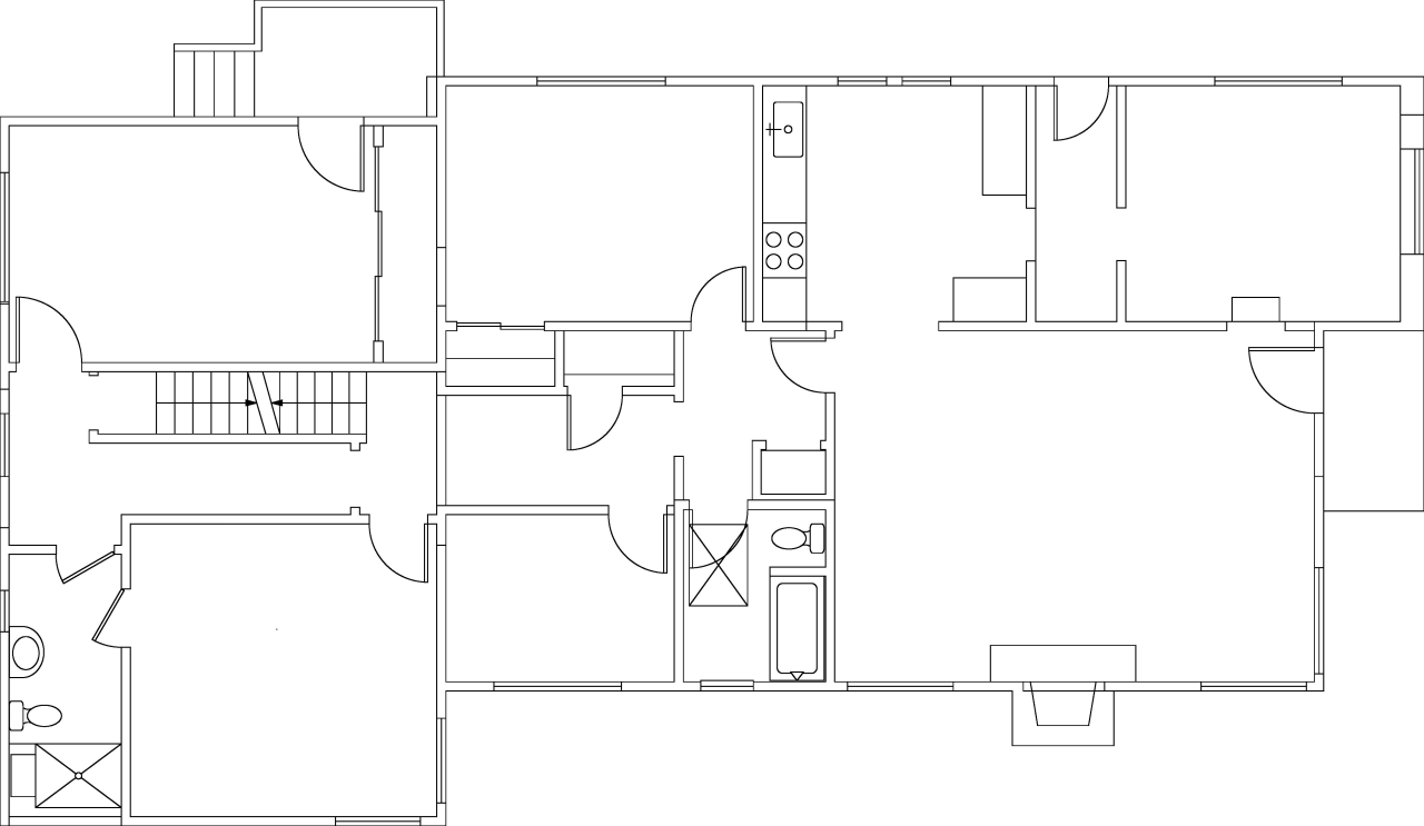
When the owners of the featured property bought the house it was a series of enclosed spaces with no sense of light or joy, says Lindy Small, principal of Lindy Small Architecture.
"The house had been neglected for decades. The interior was dark and lifeless, with numerous tiny rooms and low ceilings. The clients however were able to see the potential that the house offered. The first step in the renovation was to remove the interior walls, raise the ceiling and relocate the windows making better use of natural light and solar gain.
"By removing the walls and raising the ceiling, the house quickly became see-through', offering uninterrupted flow and simultaneous views of the front and rear gardens."
Small says that although the footprint of the house hasn't changed, the transformation has made it unrecognizable from the original, resulting in a better quality of living.
"We achieved an entire reorientation of space both vertical and horizontal which has resulted in a light-filled interior. Simple devices such as open risers on the staircase, which allow afternoon light to filter through from the rear garden to the front garden, work with the pared-back material palette to create engaging spaces that revel in light throughout all seasons."
Set on an east-west axis, one of the successes of the project is the remodeled dining room. Glazed French doors open onto a small courtyard providing alfresco dining, while windows above admit winter sunlight into the kitchen.
"Originally a single garage, a previous renovation turned it into a dining room, but it was still an enclosed space," says Small.
"Now, it is a fully functional space with real character, emphasizing indoor-outdoor flow and really answering the clients' need for the home as a place to entertain and be together."
Although the house is open plan for the most part, there is a real, albeit subtle, delineation between spaces, which the architect describes as a manipulation of perceptions.
"It comes down to an arrangement of spaces to incorporate intimate zones within public areas. The living room is a prime example. Here we have one large open room comprising kitchen, dining room and living room it is very much a public space. And yet, a private element, the nest' has been inserted into the periphery of this room. Surrounded by bookshelves, it is a perfect place to be alone, yet be with people."
This dichotomy of purpose underscores every aspect of the project, resulting in surprises such as the nest, and proving that open plan does not have to mean devoid of personality or privacy, says Small.
"The result is a building that speaks to the duality of space, where the notion of public versus private is reconsidered and brought together into an integrated whole."
Credit list
Story by: Justin Foote
Home kitchen bathroom commercial design
Diving into nature
Classic looks, contemporary efficiency
Personality plus
