Natural affinity eco-friendly home by Dr Tan Loke Mun
Eco-friendly home by Dr Tan Loke Mun
A house that achieves platinum green status might be imagined as a no-nonsense, pragmatic residence that replaces refined aesthetics with intrusive energy- and water-efficiency measures, low-emission surfaces and recycled materials. However, a planet-friendly design and aesthetic-driven decor can dovetail to great effect.
This large home was designed by architect Dr Tan Loke Mun for his own family. As the developer of the Green Building Index (GBI) for the Malaysian Institute of Architects, Tan wanted the residence to meet all eco-friendly principles as a result it has attracted the highest possible GBI-Platinum rating.
An existing house was knocked down to make way for the residence, and much of the original building's materials were recycled into the new design. Crushed concrete, stoneworks, bricks, timbers and roof tiles were all given a second life in fact, more than 90% of the home is made from regional materials, says Tan.
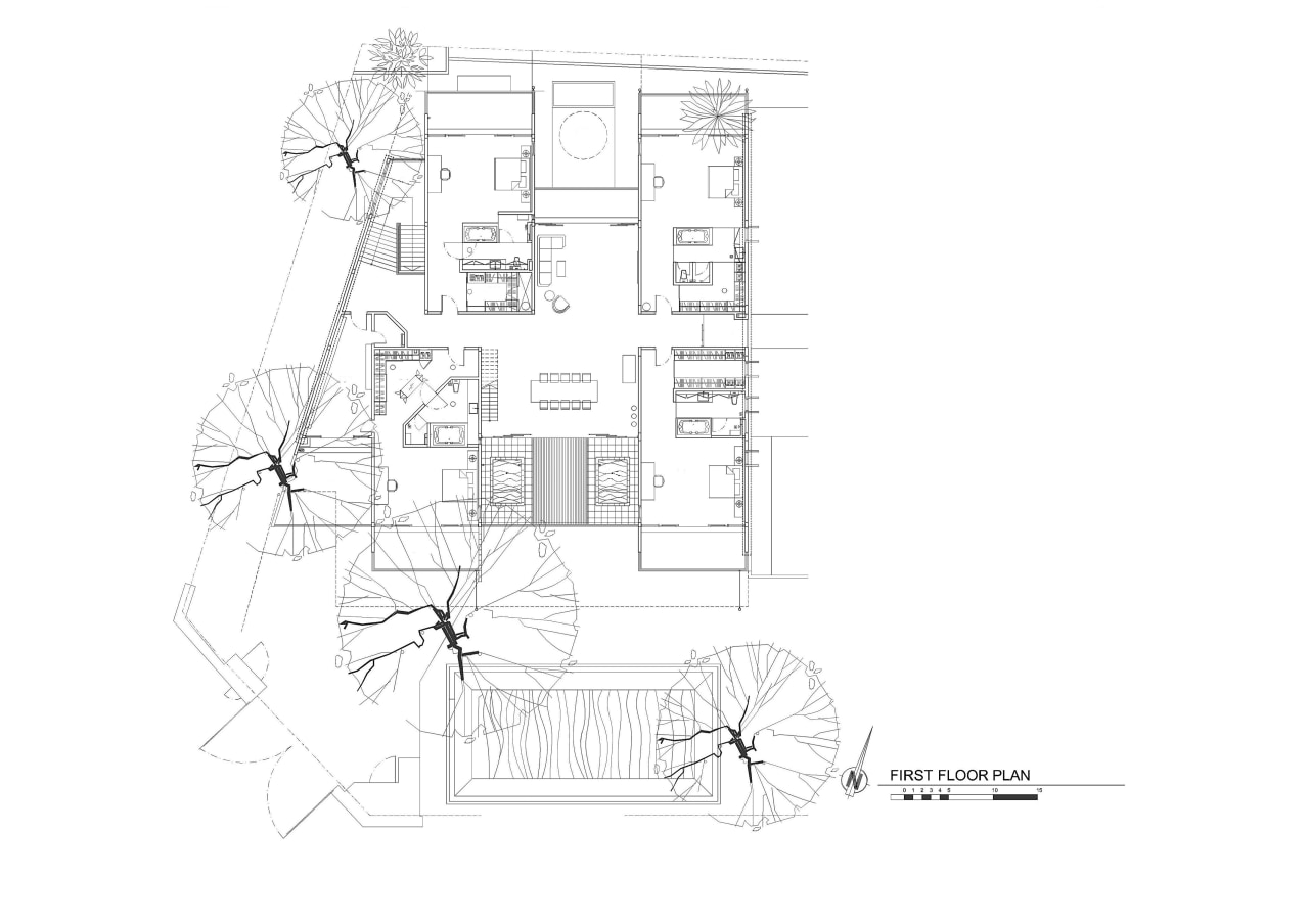
"The house stands at two and half storeys, with the public spaces, kitchens and master suite at ground level, and the family areas and four more bedrooms on the floor above.
"The top half floor contains rainwater tanks, a hobby room, workshops, and a library."
At entry level, the high-stud, open-plan living spaces combine recycled materials with chic design elements and furniture pieces creating a visually exciting, eclectic decor. The ceilings are exposed concrete, for example, while the floor is finished in buffed marble, repurposed from other projects. Worn brick wall surfaces are indispersed with smooth render.
The relaxed family spaces on the level above have an even more spacious feel this storey includes a double-height section that reaches to the roof. Recycled brickwork introduced on the exterior and some interior walls at ground level is used with greater prominence here, as a double-height wall rising to a red metal ceiling.
"While the residence has a funky ambience, the design is essentially driven by eco-friendly principles," says Tan. "And given Malaysia's tropical climate, heating and cooling were an integral part of this green agenda."
The house has a large canopy roof with shady overhangs. It is oriented to the north and south, with most glazing and decking on this axis. Giant sliding doors and windows bring cross ventilation, supplemented by ceiling fans this arrangement avoiding the need for air conditioning. Both the east and west walls are finished in insulated, lightweight blocks.
Besides the expected requirements for an eco house, such as the presence of low VOC paints, rainwater harvesting, solar-powered hot water and energy-saving lighting, the house has other highly innovative, planet-friendly features.
"Ventilation pipes and light pipes are left exposed and add to the home's character. For ventilation, the sunlight heats up the home's glassed in areas, creating a higher pressure than that of the air outside," says Tan. "Wind turbines at the top of the pipes begin to rotate due to the difference in air pressure. Hot air is then drawn out and dispersed, creating low pressure at the bottom of the house, which again draws the warmer air in to rise upwards towards the roof turbines."
The light pipes also use natural energy to improve the indoor living quality sunlight is captured through a light box at the top of the roof and then channelled down to spaces below.
"Even the many decks and water features are part of the agenda to passively control the home's ambient temperature. The large decks encourage indoor-outdoor living while the bodies of water provide evaporative cooling."
In a house that respects nature, the organic world plays its part. Green creeper walls add to the coolness and clean air, and there is on-site composting and a vegetable and herb garden.
"In addition, when clearing the site we retained five substantial mature trees," says the architect. "We then built the residence amidst them, to optimise privacy and shading."
Credit list
Builder
Roofing
Lighting
Pool designer and builder
Benchtops and splashback
Stove and ventilation
Hot water systems
Tiles
Kitchen designer, manufacturer, cabinet finishes
Drapes
Wallcoverings
Audio Visual
Oven
Refrigerator
Flooring and tub surround
Story by: Charles Moxham
Home kitchen bathroom commercial design
