Fresh perspective REDAS - design of refurbished offices by designphase dba
REDAS - design of refurbished offices by designphase dba
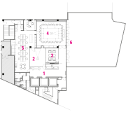
Space planning is a priority for any office design, but it takes on even greater significance when you are working with a tight space that has to meet a range of diverse requirements.
Multi-use adaptability helped determine the design of the refurbished offices of the Real Estate Developers' Association of Singapore (REDAS) by designphase dba. It wasn't the only factor, however. Design director Joris Angevaare says the association also required an impressive office interior that would mix corporate aesthetics with an upmarket hospitality venue.
Dr Steven Choo, CEO of REDAS says the brief to designphase dba was to create a prestigious corporate office fit-out that would reflect the association's role as the leading professional and representative real estate industry body in Singapore.
"It also needed to serve as a multi-purpose downtown hub for our members," he says.
All of these considerations needed to come together in an area of around 300m², Angevaare says. "Although the size of the office was doubled with this project, we needed to fit a lot in."
Not surprisingly, creating a sense of space was essential, starting with the reception area.
"We provided long sightlines in a design that was inspired by Mies van der Rohe's Barcelona Pavilion," says Angevaare.
Glass walls are positioned so that guests arriving in reception can get glimpses of the rooms beyond. This leads the eye through the office so it is perceived as a much larger space. An illuminated raised ceiling element in the reception area also gives an impression of height and spaciousness. The reception area is further defined by a custom mirror film on one long glass wall.
"The pattern of high-rise towers on the mirror film references the association's business," says Angevaare. "The film layers give the glass a three-dimensional effect and convey a sense of positivity or reaching for the sky."
The design team also maximised a view of a roof garden to draw the eye out beyond the office. This can be seen from a small meeting room, exhibition space, boardroom and circulation area and from the staff office beyond. The glazed walls of the exhibition space and meeting room also mean staff benefit from daylight exposure.
The designer says Nero Marquina marble gives the office a high-end corporate look.
"With many social functions held in the office, it was also important to provide an inviting interior. For this reason, the lighting is warm, rather than cold. And there is still a traditional feel to the office, thanks to the extensive use of dark-stained wood in reception and in the boardroom."
In another juxtaposition of the traditional with the contemporary, a white wall with a textured dot pattern runs the length of the office, from a small meeting room through to an exhibition space that doubles as a seminar room. Extending this wall beyond the glass walls was another way to make the space seem larger, says Angevaare.
Because privacy may be required at times, the small meeting room can be screened with blinds. There is also a large wood pocket door concealed within the wall behind reception. This can be pulled to close off the entire area on the other side.
"There are also two large wood doors opening to the boardroom," says Angevaare. "We wanted to provide a grand gesture for this space. For a similar reason, the corridor leading to the boardroom is very wide it creates an impressive entry."
To provide flexibility and accommodate social functions, the tables in the boardroom can be moved and the room reconfigured. Similarly, the exhibition space can be reconfigured easily. Power points are positioned in the floor so there is no need to run cables across the room.
In the staff work area, a bank of white cabinetry forms a clean, uncluttered backdrop. A colourful flower-patterned carpet adds a touch of informality, but doesn't detract from the exhibition space on the other side of the glass wall.
Credit list
Interior designer
Mechanical and electrical engineer
Fire consultant
Hardware
Lobby flooring
Paints
Workstations
Boardroom table
Sanitary solutions
Civil engineer
Quantity surveyor
Fit-out company
Carpet
Acoustic wallcoverings
Lighting
Office chairs
Reception furniture
Air conditioning
Story by: Colleen Hawkes
Home kitchen bathroom commercial design
Continuity meets subtle separation
Small space, big impact
'Worthy of Architectural Digest'
