Far horizons
Traditional Cape Cod architecture inspired the design of this expansive coastal property but it wasn't the only influence
Converting a summer cottage on Cape Cod into a permanent home was no small undertaking for the owners of this Chatham property. Having made the decision to move, the owners were faced with a problem of space the 19th-century house was simply too small to accommodate the family and all their belongings.
Polhemus Savery DaSilva Architects Builders (PSD) was commissioned to design a much larger house that would provide space for the extended family and the owners' extensive art, ceramic and antique collections.
Architect John DaSilva, PSD's design principal, says the new house needed to maximize the view of Stage Harbor and the Atlantic Ocean beyond.
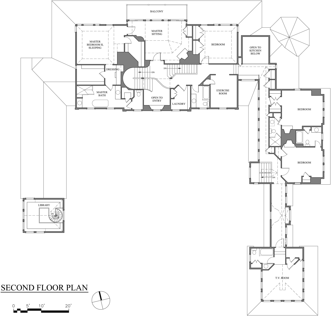
"But it was also important to keep the existing cottage, which occupied a prime spot facing the harbor. The solution was to pick up the cottage, rotate it 90°, and move it over on the site to make room for a new building. The cottage subsequently became a wing of the new house but is still recognizable as a traditional Cape house."
DaSilva says the owners' appreciation of Georgian architecture influenced the new front facade and the concept of a house wrapping around three sides of a large formal courtyard.
This courtyard, which incorporates a circular driveway, is accessed beneath an enclosed bridge that links the original cottage wing with a new garage building and television room. The other wing of the house provides a two-story library tower and a second master suite.
DaSilva says the symmetry of the Georgian facade gives way to more relaxed American shingle-style architecture at the rear.
"You can still see the Georgian influence in the hipped roof and four chimney stacks, but the rear is much more akin to the shingle style. This style is characterized by a collection of disparate shingle-clad forms, such as the octagonal screened porch, and the distinctive, sculpted veranda brackets that add a playful touch. The brackets also give a defined shape to the porch opening."
DaSilva says the widow's walk on the roof is another typical Cape Cod feature, although it cannot be accessed from the house due to local regulations concerning the overall building height.
The shipping connection is not lost, however. The house has views of two lighthouses and there are porthole windows that enhance the nautical look. The rear of the house features a central bay window that is reminiscent of the stern of an old ship, complete with captain's quarters the master suite in this case.
"The balcony railing on this level has a pattern that references Asian designs, which again is a nod to the traveling ships that once called into Stage Harbor," says the architect.
Rather than clad the house in typical white cedar shingles, DaSilva chose larger Alaskan yellow cedar shingles.
"These will still weather to an attractive silvery gray color, but as the yellow cedar trees are larger than white cedar, the shingles are bigger. We needed the broader shingle to help bring down the overall scale of the house so it doesn't feel out of context with the surroundings."
Creating a comfortable home was a priority for the owners, who undertook all the interior decorating. While the entry is a large, double-height space with a sweeping staircase, the rooms beyond have a more intimate feel.
One of the owners says the couple love the colors seen in the south of France and chose to replicate the typical blues and yellows of Provence.
"The family room walls are painted in a shade of blue that merges with the sea and the sky beyond," she says.
This palette forms a backdrop to an extensive collection of blue, lavender and yellow ceramics from Wellfleet pottery a historic local company. Local Cape Cod artists are also well represented the owners' painting collection includes images of local lighthouses. The painting over the fireplace in the family room is a similar view to that seen from the house.
To optimize the display of these works, the design provides several galleries. These wide corridors also serve as key circulation spaces.
Furnishings include antique folk art pieces the owners have collected over the years. Similarly, the interior includes an extensive collection of native American art and furnishings.
The yellow palette continues in the large kitchen, which features three islands and a double-height void that brings in additional light. There is also a separate butler's pantry.
On the second floor, the master suite includes a large sitting room behind the bay window. All the rooms, including the master bathroom, are positioned to maximize the spectacular views.
Credit list
Interior designer
Builder
Siding
Doors
Flooring
Lighting
Countertops
Sinks
Cooktop
Bath tub
Bathroom flooring
Kitchen designer
Structural engineer
Roofing
Windows
Paints
Kitchen cabinets
Backsplash
Faucets
Refrigeration
Bathroom faucets
Bathroom lighting
Story by: Colleen Hawkes
Home kitchen bathroom commercial design
From farmhouse to farmstead
Walk this way – garden pathways to lead your thinking
Different rooms, same sky-blue ceiling
