Applied geometry
Sensuous curves contrast angled elements to create a highly sculptural look for this master suite
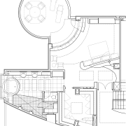
Create a point of difference that was the design requirement for this master suite, which is one of three suites in a large house owned by three couples in an extended family.
Architect Tim Bjella of Bjella Architecture says the owners living in this part of the house, Anu and Garima Jain, wanted the suite to echo the modern, sculptural design of the house.
"It was important that the suite continue this theme, but the owners wanted a different aesthetic motif to the other suites."
While the curved soffits and cove lighting are repeated elsewhere in the house, Bjella says the choice of materials and the mix of curved and angled elements set this suite apart.
"All the wood veneers in the suite are a very rich crotch mahogany. The bedroom also features gold leafing on the curved half wall behind the bed. These materials give the suite a slightly classical look."
To give the bathroom a light and airy feel, the architect introduced five skylights that flood the interior with natural light.
"The skylights set up a rhythm that you feel as you walk through the space," Bjella says. "They create patterns of light and shadow."
Other key features of the bathroom include a large double shower, which leads to a separate steam room. Both these rooms are lined with Blue Pearl granite, as is the vanity top.
The cantilevered cabinetry features crotch mahogany with an inset swoosh of stainless steel. Stainless steel also lines the base of the wall behind the vanity, ensuring there is a crisp edge to the bathroom to balance the warm wood tones and red-brown wall finish.
Credit list
Architect
Bath tub
Basin faucets
Shower column
Shower and steam room walls
Wallcoverings
Story by: Colleen Hawkes
Photography by: Brian Droege
Home kitchen bathroom commercial design
2026 TIDA New Zealand Bathrooms – Entry open
2026 TIDA Australia Bathrooms – Entry open
Gilded grove
