All the better to see through
Opening up this kitchen to the wider family area has created strong visual links, both inside and out
There has been a sea change in the priority given to kitchen design in the past decade. No longer a room to be hidden from sight, the modern kitchen is much larger and more connected with family living areas than in the past.
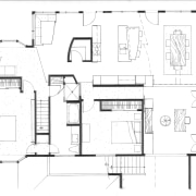
This remodeling project epitomizes that change. The kitchen, in a 1960s rambler-style house, had been remodeled several times over the years, but was still a small, internal room with a pass-through to a sunroom. Owners Bob and Betsy Wilson commissioned architect Randall Buffie, AIA, to come up with a fresh, contemporary design that would open up the space and connect the kitchen to the outdoors.
Buffie says the entire living space was gutted as part of a major house refurbishment. The short wall separating the kitchen from the sun room was removed and larger windows were introduced to maximize the view of the garden.
"The main kitchen work area was rotated 90° so it now faces the dining area. A large island provides a casual eating area and allows easy socializing while meals are being prepared."
A walk-in pantry, which reads as a freestanding ocher-colored box within the room, separates the kitchen from a banquette area and formal sitting room.
To make the height of the room more in proportion to the space, the original rambler-style ceiling and a large structural beam were removed. A new W-shaped ceiling articulates the roofline and completely transforms the house by creating a soaring, spacious interior.
Buffie says the owners' wish for a warm, modern design determined both the material palette, and the scale of the kitchen cabinets.
"This was always going to be a much larger kitchen, but it still had to be in keeping with the scale of the house it needed to feel comfortable."
Buffie specified three different wood veneers, which highlight the different cabinetry functions. Streamlined overhead cabinets are in lacewood, with touch pulls. The integrated refrigerator, lower drawers and island are in quartered makore, and the vertical cabinets that bookend the wall of appliances are in fiddleback makore.
"I wanted to create a play of textures, and give the cabinetry a bit of a modern twist," Buffie says. "Visually, the contrasting textures help to soften the joinery. This is also a kitchen that unfolds as you walk through there is a lot of detail, but not everything is obvious at first glance."
In contrast to the wood cabinets, the backsplashes feature iridescent glass tiles. Additional light is reflected through a translucent glazed wall, which forms the back of the shower in the master suite.
"The aquamarine glow through the glass makes this a particularly attractive feature by night," says the designer.
Other special features include Green Iron granite countertops, and a cherry floor with mahogany inlays. A slight bow in the floorboards beside the windows reflects the subtle curve of the ceiling above.
Credit list
Kitchen manufacturer
Cabinetry
Backsplash
Lighting
Faucets
Cooktop
Refrigeration
Builder
Countertops
Flooring
Paints
Sink
Oven
Ventilation
Dishwasher
Story by: Colleen Hawkes
Photography by: Brian Droege
Home kitchen bathroom commercial design
Surface attraction
In tune with the land
Light-hearted by the sea
