Facebook

Tweet

Help

Small apartment renovation delivers a unique challenge

For many families, apartment living often seems impossible. You'll likely reconsider after seeing this renovation

You can see into both the bathroom and architecture, daylighting, floor, glass, handrail, house, interior design, real estate, gray
You can see into both the bathroom and unique bedroom

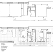
Design: xs architecturePhotography: Gidon LevinAbout the project (text supplied):Welcome to a long and narrow apartment in a preservation listed building on Tel-Aviv's Rothschild Boulevard. Open-minded and daring customers brought a fascinating challenge for this 93m² apartment: a room for each of the three children and for the parents, 2 bathrooms and a spacious living area. The starting point was unusual: the children's rooms were designed to be minimal, functional and simple thus providing a wider living space in the public areas.


One of the most interesting aspects of the architecture, ceiling, daylighting, floor, handrail, house, interior design, real estate, stairs, wall, gray
One of the most interesting aspects of the renovation is the new partition, which includes two beds and ample storage

The narrow structure demanded a particularly long corridor (9m in length) to enable access to all rooms. Therefore, the corridor and the exposed silicate-brick wall together became one of the two elements that directed the planning of the apartment. The second element organising the apartment is the box-like structure with its elements of the woodwork.

The brick wall draws the eye – but bedroom, ceiling, daylighting, home, house, interior design, property, real estate, room, window, gray
The brick wall draws the eye – but so does the ceiling fan

The twins share a one-room space (14 square meters), with a 140-cm wide partition in the centre from floor to ceiling and along the length of the space. The partition divides the space into two separate rooms. Each façade of the partition faces each room and contains all the room’s functions: wardrobe, small writing desk; and in the middle, the beds "inserted" one above the other. Thus, the valuable area of the bed is doubled and the apartment’s height was used to maximise the mass of both rooms.

Story by: xs architecture

11 Jan, 2018

Home kitchen bathroom commercial design


Latest Post

29 Mar, 2026

29 Mar, 2026

29 Mar, 2026

We know the Specialists

Similar Stories