Facebook
Tweet
Help
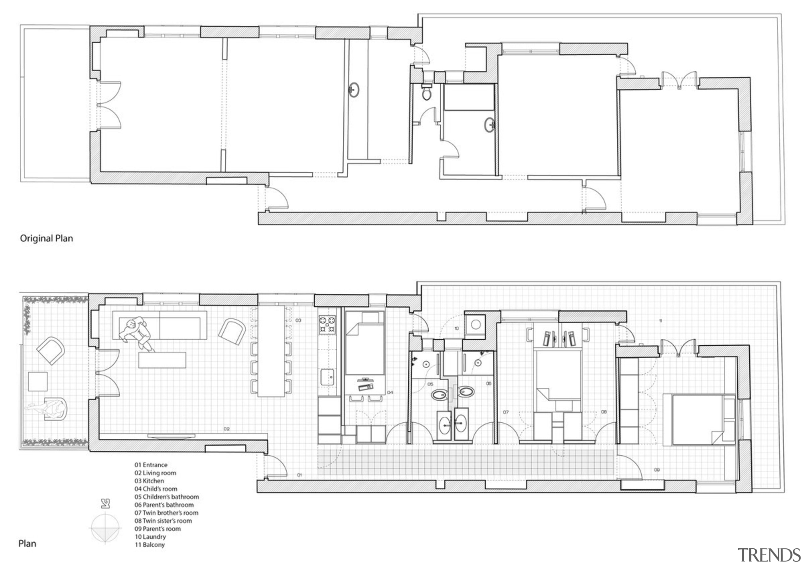
Plans - Plans - architecture | area | design | diagram | drawing | elevation | floor plan | line | plan | product | product design | schematic | structure | technical drawing | white
Associated Post
Small apartment renovation delivers a unique challenge
Trendsideas
Home kitchen bathroom commercial design
Latest Post
Refined yet inviting
In balance
Stretching out on the land
We know the Specialists
Latest Book
More Books >
Home Kitchen Bathroom DesignÂ