Facebook

Tweet

Help

Makeover moves

The Victorian-era facade of this inner-city house has been retained, preserving the integrity of the streetscape

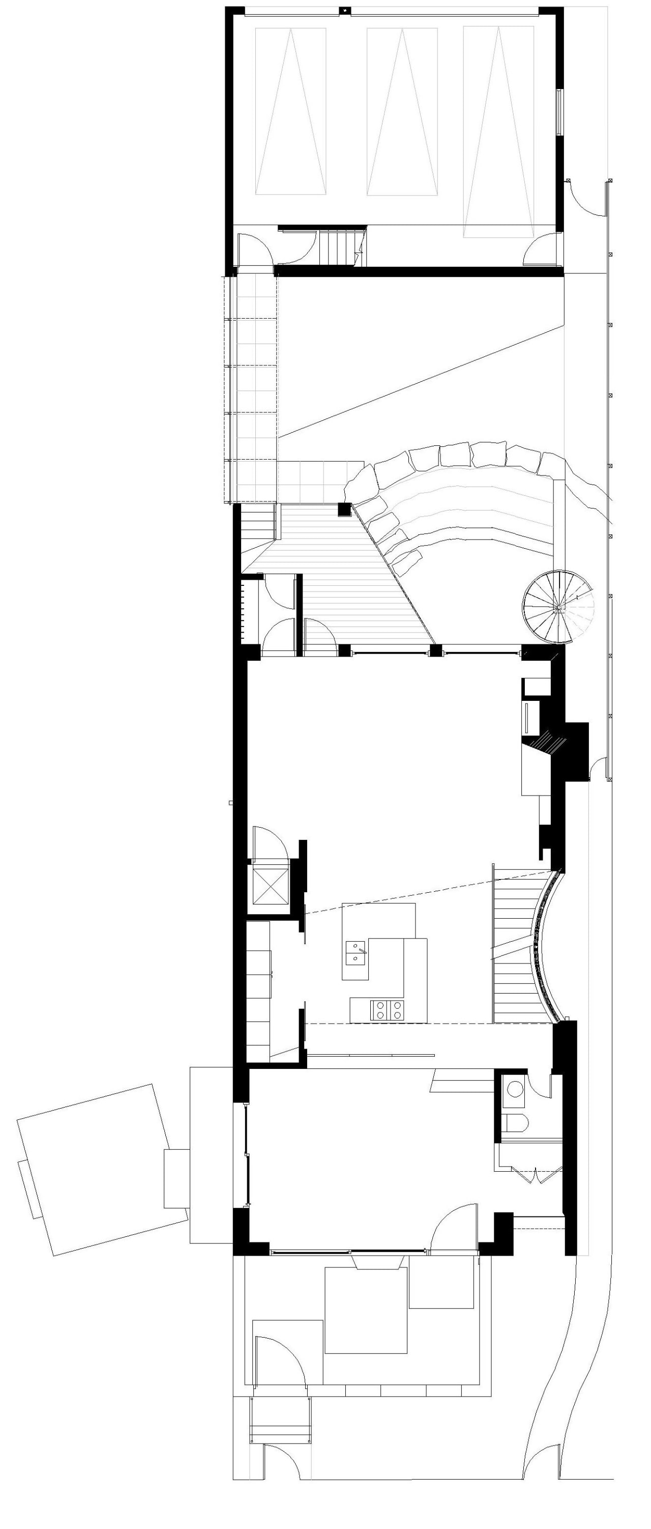
View of a renovated three-story home, built to angle, architecture, area, black and white, design, diagram, drawing, elevation, floor plan, font, line, plan, product, product design, schematic, structure, white
View of a renovated three-story home, built to preserve the first 12 ft of the original facade.

The intrinsic value of a period home is something we all recognize, and many of us go to great lengths to preserve it. While character accounts for much of the appeal, there are drawbacks to living in the past most notably, the fact that the way our forebears lived does not match our own modern lifestyle.

When architect Thomas Hickey was asked to design a new house in an area surrounded by period homes, he saw an opportunity to turn a possible constraint into an advantage.

"While the house is not located in an historic district, and we were therefore not obliged to keep the original structure, the street does include a good number of period homes.

"For that reason the decision was made to work with the facade, so as to maintain the fabric of the neighborhood, but also so it could act as a screen for the new structure."

The architect kept the face and the first 12ft of the facade, incorporating this into the sides of the new house.

"The design imperative for the house was to keep it as open plan as possible, to allow natural light to penetrate into the very core of the building.

"To that end, the true facade is a full-height glazed curtain wall. The area between it and the original facade is now a landscaped entry courtyard," says Hickey.


View of a renovated three-story home, built to apartment, architecture, building, city, cottage, estate, facade, historic house, home, house, landmark, mansion, neighbourhood, property, real estate, residential area, tree, window, black, gray
View of a renovated three-story home, built to preserve the first 12 ft of the original facade.

In order to retain the original facade, the construction firm, Leader Builders, had to shore it up while preparing the site so work could begin, says owner Pete Antonow.

"We had to go back to the front crawl space to underpin the existing foundation. We also needed to provide strut supports for wind loading."

The builders dug 4ft-long trenches spaced 4ft apart under the existing foundation. Concrete was poured under the footing and reinforcing steel inserted for extra stability. Once the concrete had set, work continued on the remaining areas until the entire foundation was supported.

With the original facade stabilized, the builders were able to turn their attention to completing the more aesthetic aspects of its restoration.

"Each of the windows was removed and all of the sill stones replaced, as well as any broken bricks," says Antonow. "One of the bigger jobs was repointing the masonry, which was never intended to be exposed. We also replaced the capping on top of the trim and side walls."

Another of the intricacies associated with the project was the merging of both structures to house the curtain wall.

"The glazed wall is actually mounted independently of the structure. A steel I-beam frame was built, which supports the glazing, and is attached to the exterior walls of the house," says Antonow. "A temporary wall was constructed while the glazed one was being manufactured."

View of a renovated three-story home, built to architecture, courtyard, facade, home, house, outdoor structure, real estate, residential area, siding, gray
View of a renovated three-story home, built to preserve the first 12 ft of the original facade.

In order to create a seamless transition between the original structure and the new build, Hickey sourced matching bricks for the exterior. Another device the architect employed to minimize any appearance of disparity between the two elements involved the new courtyard.

"There is a marked difference in height between street level and the front door," says Hickey.

"Steps up from the street to the gate account for most of that, but I wanted to soften the transition from the gate to the door. By providing a series of elevated planes in differing materials that act as steps, I was able to shift the focus from the variation in height to the visual interplay of the materials."

This is a motif the architect uses time and again within the house, repeatedly referencing materials in different ways to establish dualities, both in terms of the design and to make subtle references to the history of the building.

"This is the first time I've carried out a project like this. And while it would not be the solution every time, it gave, in this case, a very successful result," says Hickey. It's a sentiment that is echoed by the builder.

"The process was quite a challenging experience for us,"says Antonow, "but at the same time, it was very rewarding."

Credit list

Builder
Leader Builders Corp
Flooring
White oak
Gate
Designed by Thomas Hickey,

Story by: Justin Foote

26 Apr, 2011

Home kitchen bathroom commercial design


Latest Post

21 Dec, 2025

21 Dec, 2025

21 Dec, 2025

We know the Specialists

Similar Stories