Facebook

Tweet

Help

Keep it simple

With limited materials, light colors and a few unexpectedly bright touches, this kitchen, and its adjoining family room, are now spacious, open and airy

View of kitchen which features a separated living apartment, architecture, ceiling, dining room, furniture, home, house, interior design, living room, real estate, room, table, window, gray
View of kitchen which features a separated living area, white maple veneer cabinetry and a kitchen island.

Good connections between adjacent spaces can be achieved in a variety of ways. You may choose to have a single, large open-plan kitchen that merges seamlessly with the family room. Or you may prefer the option of some separation between these areas, and instead create a connection by repeating colors and materials.

The owners of this New York apartment asked architect Coty Sidnam to redesign their kitchen and family living spaces. With a large family, the owners enjoy cooking and casual entertaining, and wanted a kitchen that was aesthetically pleasing and functional.

"I wanted our new kitchen to work for our family and its particular needs. It had to be the center of our family life," says one of the owners.

Bringing an open mind to her design, Sidnam reorganized the original service area of the apartment. What had once been a fairly dark kitchen, laundry and small bathroom is now a new, large and airy eat-in kitchen that flows smoothly and seamlessly into a casual family room. A small bathroom and laundry are close by.

The best location for the kitchen was in the center of the apartment's casual living zone, and a pocket slider offers the option of closing it off from the family area if required, says the architect.


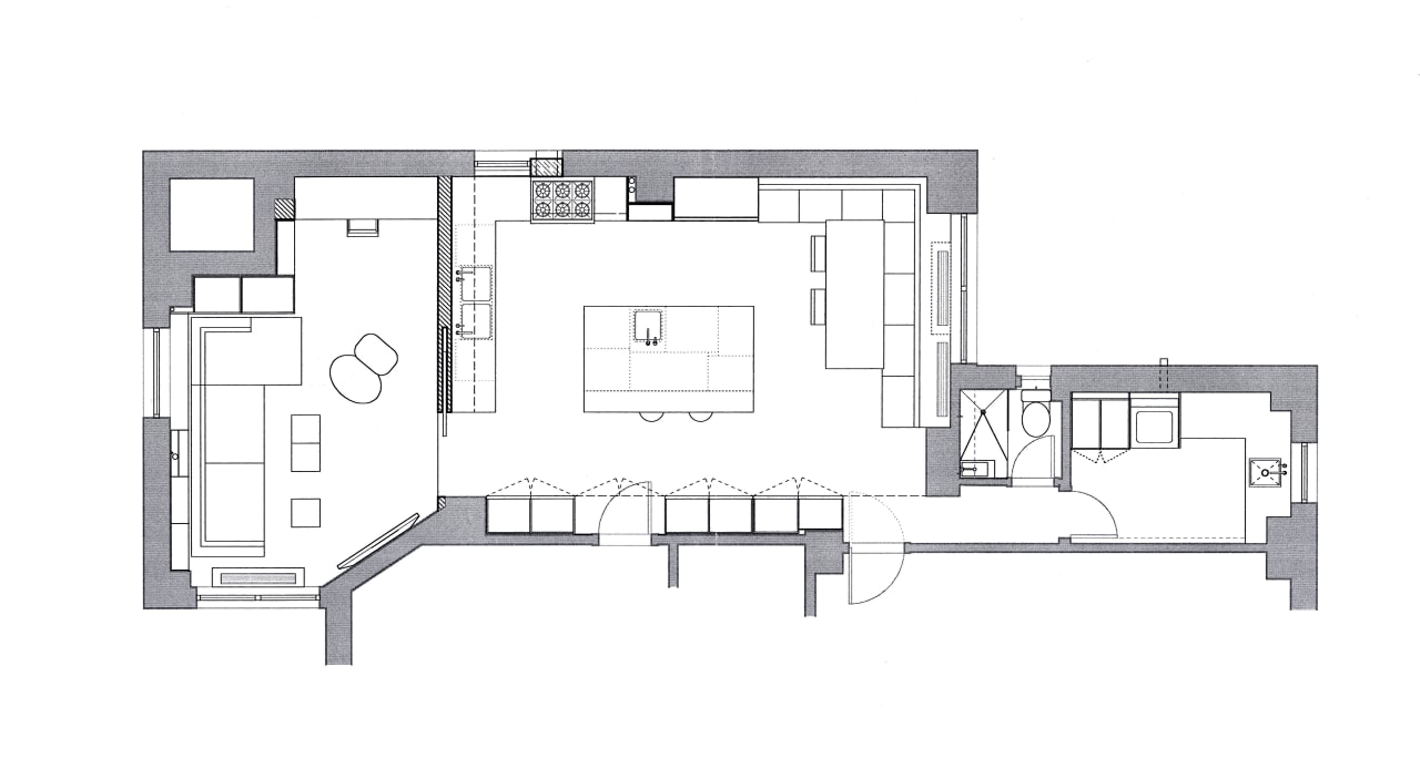
legend for plans. architecture, area, design, diagram, elevation, floor plan, home, house, plan, product, product design, schematic, structure, white
legend for plans.

Two sinks provide convenient, separate work areas in the kitchen, which also has two ovens and dishwashers. Seating at the island makes a handy spot for the children to have a snack.

"The owners also wanted the new spaces to be light, bright and, above all, clean-lined and simple in appearance," Sidnam says.

To help achieve this, windows that previously had been blocked were uncovered. Solar control shades let in light without loss of privacy, and soften less attractive outlooks.

The choice of materials and colors also makes an important contribution to the sense of light in the kitchen. Mid-range charcoal gray tiles on the floor, honed CaesarStone on the countertops and kitchen tabletop in the color Concrete, along with cabinetry and banquettes in light maple wood, provide clean, reflective surfaces.

"Our color palette is light, bright and cheerful, with splashes of cantaloupe, red and white offering highlights," says Sidnam.

legend for plans. architecture, area, design, diagram, elevation, floor plan, home, house, plan, product, product design, schematic, structure, white
legend for plans.

An extra-wide doorway with a pocket slider, which can be closed for acoustic privacy, joins the kitchen and living area. To help link the two rooms when the door is closed, a glass panel connects the space between the top of the door and the ceiling.

Restraint in the selection of materials also emphasizes the simplicity of the design. An acrylic sheet back-painted to match the color of the kitchen walls forms a backsplash behind the sink counter, providing a continuous surface that blends with the rest of the painted surfaces.

Where possible, appliances are integrated for a clean-lined, minimalist look. Appliances, sinks and the backsplash behind the oven are all in brushed stainless steel, which also helps reflect the light.

To further underline the connection between the two rooms, the stainless steel is repeated in the built-in custom cabinet in the family area. Made from very thin, delicate-looking stainless steel, the shelves almost appear to float in the space. Other built-in cabinetry, which contains audiovisual equipment, is made from light maple, which is also used for the work space and computer desk.

Lighting, too, is simple, with downlights that can be swivelled to illuminate perimeter work surfaces. Suspended over the center island is a rectangular-shaped pendant made from three-quarter-inch thick glass embedded with halogen fixtures. With its visible circuitry, this see-through fixture adds a quirky, interesting note to the kitchen.

Credit list

Kitchen manufacturer
Integkral Construction
Countertops and tabletop
CaesarStone in Concrete
Floor tiles
Stontech StonGrey Floor Gres, from Stone Source
Kitchen chairs
Fritz Hansen
Backsplash
Nuvacor in Vanilla
Faucets
Dornbracht
Cooktop
Wolf
Refrigeration
Sub-Zero
Cabinetry
Rotary-cut white maple veneer with clear urethane finish
Kitchen table bases
Knoll Cyclone (Noguchi)
Windows
Marvin Windows, from Skyline Windows
Banquette
Custom, with Knoll Chroma Papaya fabric
Sink
BlancoSteelArt Precision Line
Oven, dishwashers
Miele
Ventilation
Dacor

Story by: Mary Webb

30 Dec, 2008

Home kitchen bathroom commercial design


Latest Post

09 Dec, 2025

07 Dec, 2025

07 Dec, 2025

We know the Specialists

Similar Stories