Call of the outdoors
With its large sliding doors and cool breezeway, this new apartment provides alfresco dining in a loggia right alongside the kitchen
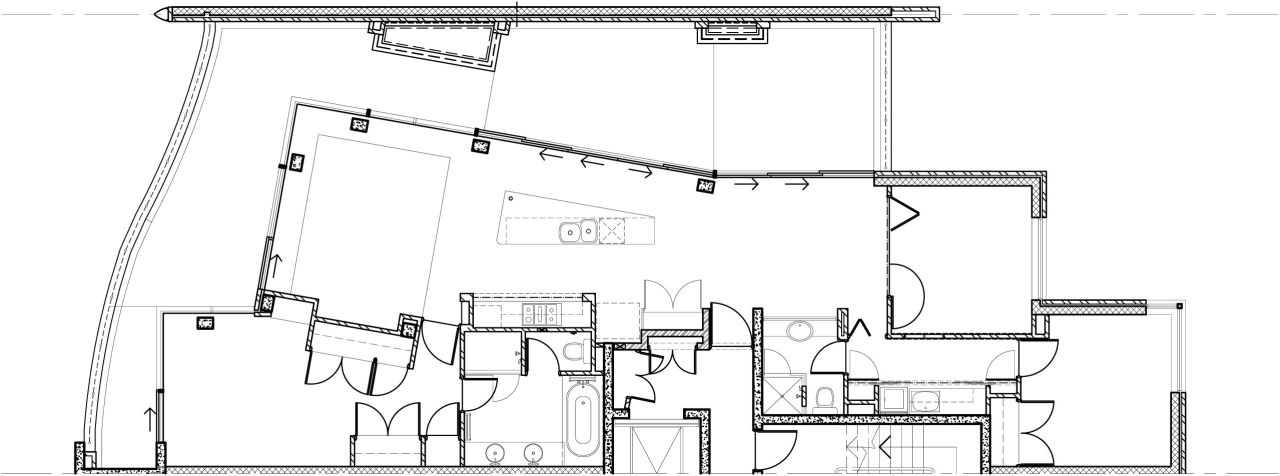
Maximising the available space is a priority for most apartment designers, but they are often hampered by building restrictions.
Architect Ed Eames came up with a novel space-enhancing solution when designing a new apartment building in Perth he provided a breezeway that runs from the front to the rear. This ensured that while the apartment interior met planning regulations regarding maximum size, the useable floor space almost doubled with the covered outdoor living area or loggia.
The loggia features a dining table and two separate casual seating areas, both with views one on the east side of the apartment and the other from a sunset deck overlooking the Swan River on the west.
As the apartment's glazed side wall is angled, the breezeway narrows at one end. This means the loggia can be easily screened for additional shelter if required.
To make the best use of the breezeway, Eames positioned the kitchen alongside, providing full-height sliding glass doors that run the full width of the room.
"The apartment is about 130m², but it feels like 200m² or more, because of the seamless flow between inside and out," he says. "Using the same travertine marble flooring enhances the visual connection."
Like most modern apartments, the interior is open plan, so Eames says he designed the cooking area to be functional yet as unobtrusive as possible.
"Experience tells us that people who live in apartments spend a lot less time cooking than they imagine," he says. "However, it is still a focal point for family and friends, and needs to work well for entertaining purposes."
To this end, the architect provided a galley-style kitchen, with the cooking centre set back into the bulkhead on the rear wall, and the sink and dishwasher on the island. A slide-out hood minimises the visual impact of the ventilation unit.
"It's a very clean, simple aesthetic," says Eames. "The island follows the angle of the exterior wall, widening at one end to provide plenty of space for a breakfast bar, food preparation and serving."
The sleek material palette reinforces the contemporary design approach. Cabinets are lacquered white, and benchtops, including a waterfall side on the island, feature a dark brown granite.
A bronze glass splashback reflects the natural light, as do frosted-glass cabinets above the cooking centre. These provide extra storage without visually enclosing the space.
Credit list
Interior designer
Flooring
Cabinetry
Splashback
Tapware
Refrigerator and dishwasher
Story by: Colleen Hawkes
Home kitchen bathroom commercial design
9 tile shapes and finishes that think outside the square
Reflection and repose
White cloud, blue sky
