Peak performance alpine remodel by Mason & Wales Architects
wide-ranging renovation by Mason & Wales Architects
There can be few things as frustrating for a homeowner as a wall that blocks out the scenery or window placement that leaves the garden out of sight from the living spaces.
When architect director Regan Johnston of Mason & Wales Architects came to this project, the 1980s-era house suffered from poor visual connection to the spectacular mountain landscape, and a lack of indoor-outdoor flow. The interior was equally in need of attention it was cold and uncomfortable, with segregated rooms and inadequate insulation, says Johnston.
In transforming the house, the architect retained the original exterior material palette, with local schist featuring as cladding and on walls around the property, garden borders and indoor and outdoor fireplaces.
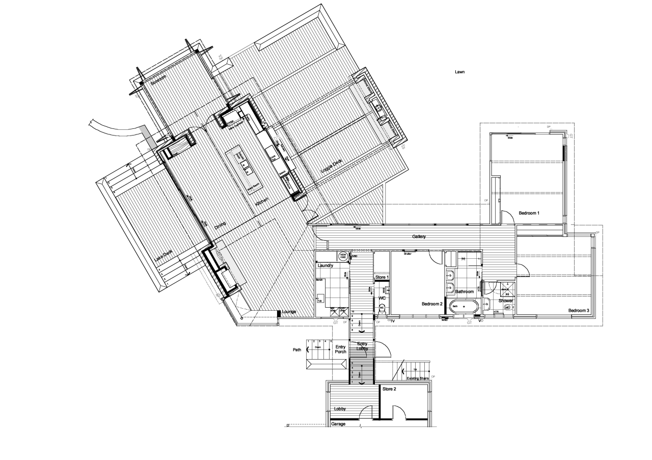
The house, however, was stripped back, and the main living, kitchen and dining room volume demolished, says Johnston.
"This was then rebuilt within the same footprint. It made good sense in terms of both the architecture and the budget to focus on this area, which is in use by the family 90% of their waking time at home."
The most dramatic aspect of the project is the way Johnston has brought the house into harmony with the rural environment by introducing a series of open-air living spaces. These include a new sunroom, which extends off the living spaces, with bifold doors on three sides that can all be pulled back to make the living area and garden one. A loggia beside the sunroom features operable louvres that can be closed to provide shelter from the rain, or opened to optimise the winter sun. There is also a lake terrace on the other side of the house.
"The connection between the house and its surroundings has been emphasised in another way, too," says Johnston. "We set the decks at exactly the same height as the indoor spaces, so the wooden floors of the living room and sunroom flow out onto the timber decking."
Interiors were transformed to make way for open-plan living, with a new kitchen, bathrooms and front entrance. The existing roofline was retained, but the gabled ceiling above the kitchen was dropped down over the living spaces, making them more cosy. In other areas such as the bedrooms, ceilings were lowered to accommodate insulation. This also gave these spaces a more intimate feel. .
The restrained colour palette is in white, contrasting with the visual warmth of wood floors introduced right through the home.
"Weather can change rapidly in this high mountain area," says Johnston. "For this reason, the house is as well equipped for winter as it is for summer. In addition to the insulation installed throughout, the schist stone acts like adobe brick, heating up with the sun during the daytime and then releasing that warmth back into the interior during the cool evening hours."
The house is further protected from poor weather with argon-filled double glazing and a build envelope so efficient that the fireplace and two wall-mounted radiators are sufficient to keep the interiors snug year round. One of these is tucked under the kitchen island, making for a very warm breakfast bar.
"The reinvented home is light, bright and welcoming. Besides the new outdoor areas, all the new windows frame picture views of the established gardens and landscape," says the architect. "The grey stone facades can be glimpsed from within the living spaces as well, which reinforces the strong connection between inside and out."
Story by: Trendsideas
Home kitchen bathroom commercial design
Walk this way – garden pathways to lead your thinking
From farmhouse to farmstead
Sculptural highlight
