Open to view
A previously unused space is transformed into a spacious, light-filled kitchen with an emphasis on indoor-outdoor entertaining
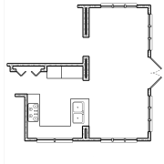
Sometimes the solution to a problem is so obvious after the fact, that we wonder why we didn't realize it sooner. The owners of this property wanted to address the limitations of their existing kitchen to make it more conducive to entertaining.
The house was built in 1929 and had been remodeled in the 1980s, at which time the kitchen was updated and a sunroom added, says Mark Williams, principal of Mark Williams Design Associates.
"The kitchen remained in its original position, while the sunroom doubled as a casual dining area. The problem was the sunroom was rarely used by the current owners and the kitchen was too small to act as a gathering space during parties."
The solution was to move the kitchen into the sunroom and turn the former kitchen space into a sitting room and study area.
"It really hadn't occurred to us to use the sunroom for the new kitchen, but our goal was to improve the indoor-outdoor flow, so it made perfect sense to reorganize the spaces this way," says the homeowner.
One of the first considerations was to enlarge the access to the back yard. The existing French doors were replaced with sliding glass doors, which have also added to the streamlined, contemporary feel of the kitchen.
"The kitchen is now twice the size of the original and has direct access to the dining room. The sitting room allows guests to be part of the action without being in the way," says Williams.
Due to the shape of the space there were always going to be concerns about making it function. Right from the start, Williams and the homeowners knew that a traditional work triangle configuration wasn't the answer.
"I started by centering the sink in the island and separating the cooking zones so that they were at opposite ends of the island," says Williams. "Standing at the sink you have the cooktop to the left, along with pot and pan storage and all the items associated with working at the cooktop. On the right you find the ovens, refrigeration and further storage."
"While it's not a conventional setup, it does work really well," the homeowner says. "We both like to cook a lot, so the extra counter space provided by the island is a bonus.
"There isn't one aspect I would change now it's come together exactly as we wanted. We've found that we spend all our time downstairs these days, either in the kitchen or the sitting room."
Story by: Trendsideas
Home kitchen bathroom commercial design
At one with the Amazon
Contrast and connection
Masculine meets mixed use
