Keeping the faith
Major renovations to this house played havoc with the gardens, but a sympathetic makeover has them just like old again
When the house you live in has achieved iconic status, any changes you undertake will be critically followed and commented on. The owners of the home featured on these pages were keenly aware that proposed renovations to the building and grounds would have to be sympathetic to the original character of the home.
Landscape designer Robert Boden was commissioned to rehabilitate the gardens once the renovations were completed.
"As well as getting the gardens back into shape, the owners also needed to re-establish the tennis court, and the husband who is a keen swimmer wanted to extend the swimming pool to include a lap pool."
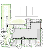
The renovations included a two-storey addition to the rear of the home and the inclusion of a basement garage extending beneath the tennis court.
With its neoclassical lines, the home has a very traditional, formal aspect that was reflected in the original gardens. Keen to maintain tradition, Boden came up with a design that stayed true to the dictates of formality, yet allowed for a modern re-interpretation, making it better suited to the young family who make the property their home.
"I think the best feature of the garden was its traditional feel, with its sweeping lawns. This is the basis I used when coming up with the new design.
"A contemporary edge was achieved through the incorporation of the paved outdoor entertaining areas, extending the garden's functionality."
Because much of the original lawn area was taken up by the addition to the house and outdoor entertaining areas, the focus was to maximise the remaining area. To this end, Boden conceived a series of inter-connected levels, augmented with low-profile planting that visually extends the green-space.
"While not symmetrical, and therefore not wholly within formal dictates, instituting the levels allowed the lawn areas to remain rectangular. Planting beds could then be established around the perimeter of each level as well as the property boundary, preserving the oases of green that had originally existed."
The multiple levels also came about as a way to incorporate the extended swimming pool, says Boden.
"Perhaps the biggest challenge in the design was extending the pool to accommodate a 25m lane and making it fit the site. The only way to achieve this and be in keeping with the overall design scheme was to build up that area of the pool terrace and reshape it along formal lines."
Another challenge facing the design was as a result of excavations carried out for the garage.
"In order to provide sufficient on-site parking, an area for the basement garage had to be excavated from the site, part of which is now situated under the tennis court. This required a feat of engineering when it came time to re-establish the tennis court and surrounding gardens to be in keeping with the design and within structural load requirements," says Boden.
Drawing inspiration from, and staying true to with the original garden also had the benefit of retaining a number of existing plants.
"Many of the established trees were preserved, which as well as maintaining the existing charm and tradition of the garden, also acted to soften the transition from new to old. This gives a sense of longevity to the overall design and lessens the impact of change," says Boden.
Other existing elements were also retained, including the southern garden which has a free-flowing, romantic feel and the water feature at the front of the home, says Boden.
"After the formality of the rear garden, I felt it was important to offer an area that acted as a contrast to all that regulation. These small, separate spaces are little points of interest that give a sense of exploration as you move through them."
The resulting garden is essentially two distinct areas, both of which are representative of the original and an improvement to it, which Boden says satisfies both the needs of the owners and the critics.
Story by: Trendsideas
Home kitchen bathroom commercial design
Walk this way – garden pathways to lead your thinking
From farmhouse to farmstead
Different rooms, same sky-blue ceiling
