Facebook

Tweet

Help

Image 7 of 7

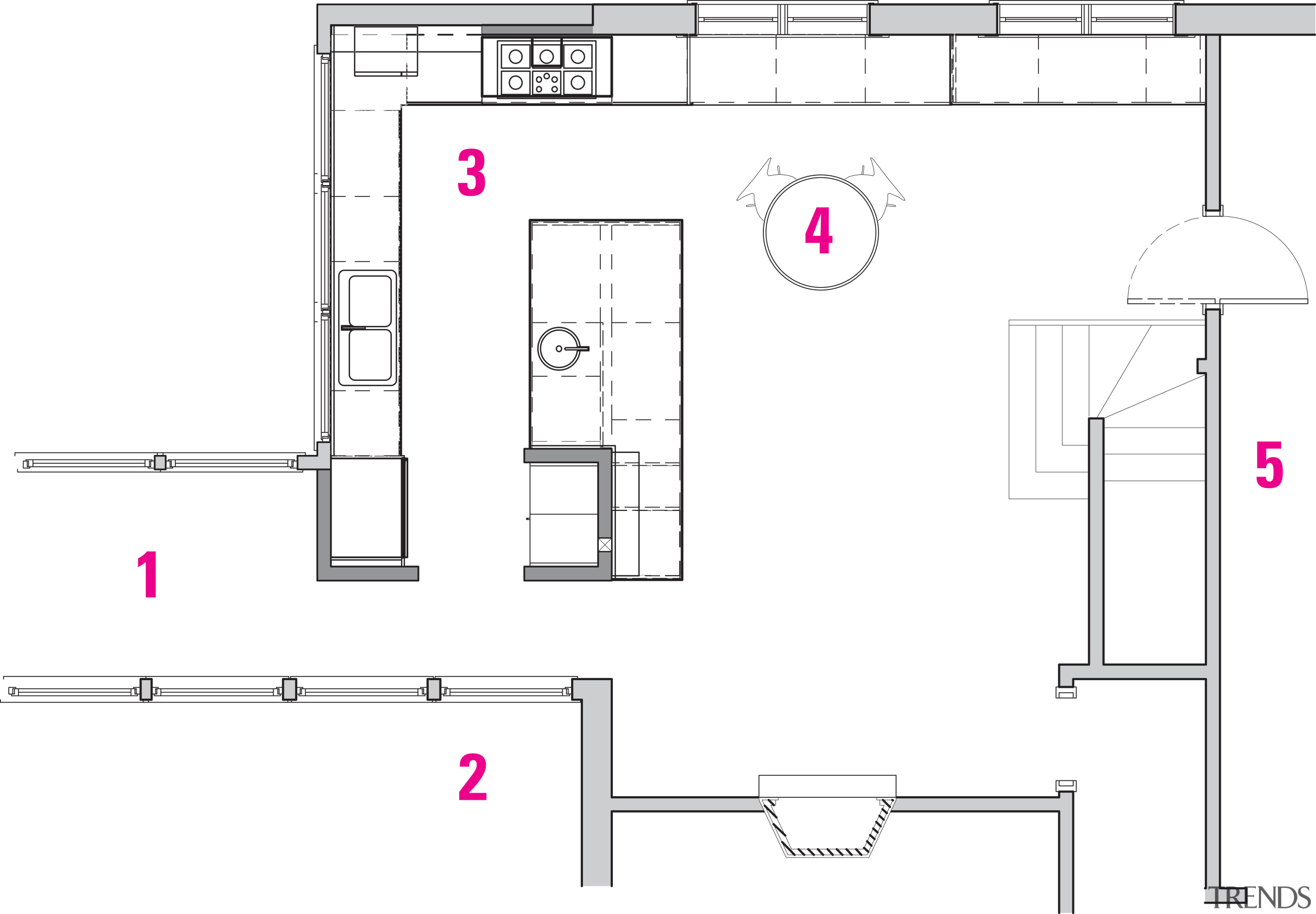
Legend for plan: 1gallery. 2 courtyard. 3 kitchen. 4 informal dining and living. 5 dining room.

Legend for plan: 1gallery. 2 courtyard. 3 kitchen. 4 informal dining and living. 5 dining room.

Associated Post

07 Sep, 2007

Home kitchen bathroom commercial design


Latest Post

29 Mar, 2026

29 Mar, 2026

29 Mar, 2026

We know the Specialists

Latest Book

TRENDS MINI COVER 4201 -

Home Kitchen Bathroom Design 

Read More