Facebook
Tweet
Help
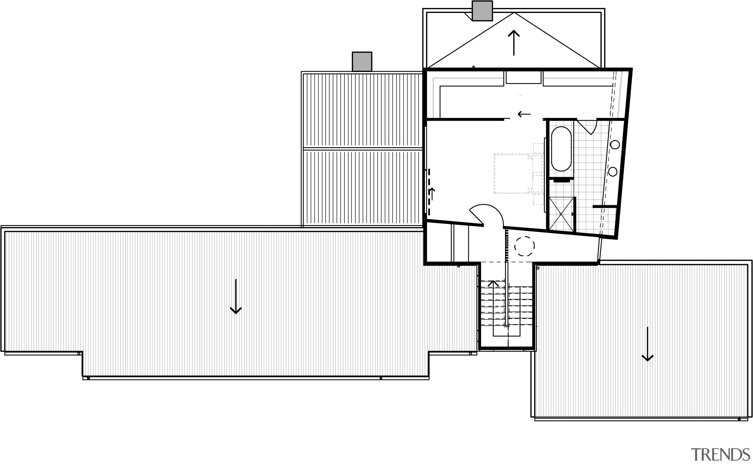
This plan shows the rakish nature of the corner angles on this homes upper level.
Associated Post
Contemporary home in clean lined geometric forms has great indoor outdoor flow
Trendsideas
Home kitchen bathroom commercial design
Latest Post
2026 TIDA New Zealand Bathrooms – Entry open
2026 TIDA Australia Bathrooms – Entry open
Gilded grove
We know the Specialists
Latest Book
More Books >
Home Kitchen Bathroom Design