Facebook

Tweet

Help

Image 11 of 12

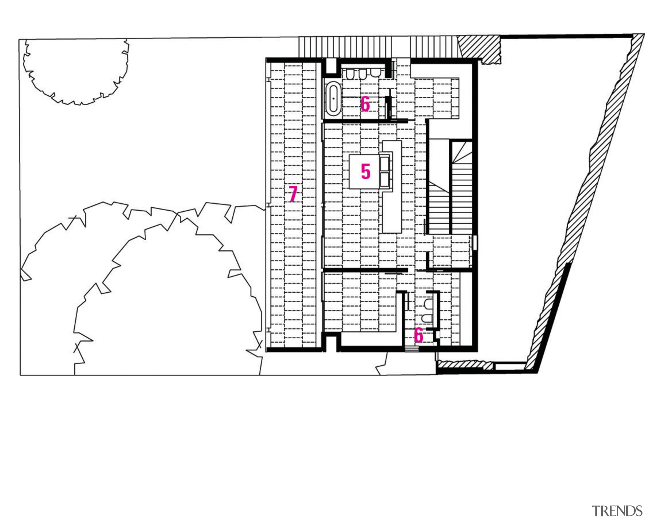
1 Garge. 2 Entry. 3 Family room. 4 Kitchen. 5 Bedroom's. 6 Bathrooms. 7 Balconies. 8 Patio. 9 Pool. 10 Lawn.

1 Garge. 2 Entry. 3 Family room. 4 Kitchen. 5 Bedroom's. 6 Bathrooms. 7 Balconies. 8 Patio. 9 Pool. 10 Lawn.

Associated Post

06 Nov, 2007

Home kitchen bathroom commercial design


Latest Post

22 Feb, 2026

22 Feb, 2026

22 Feb, 2026

We know the Specialists

Latest Book

TRENDS MINI COVER 4201 -

Home Kitchen Bathroom Design 

Read More