Facebook
Tweet
Help
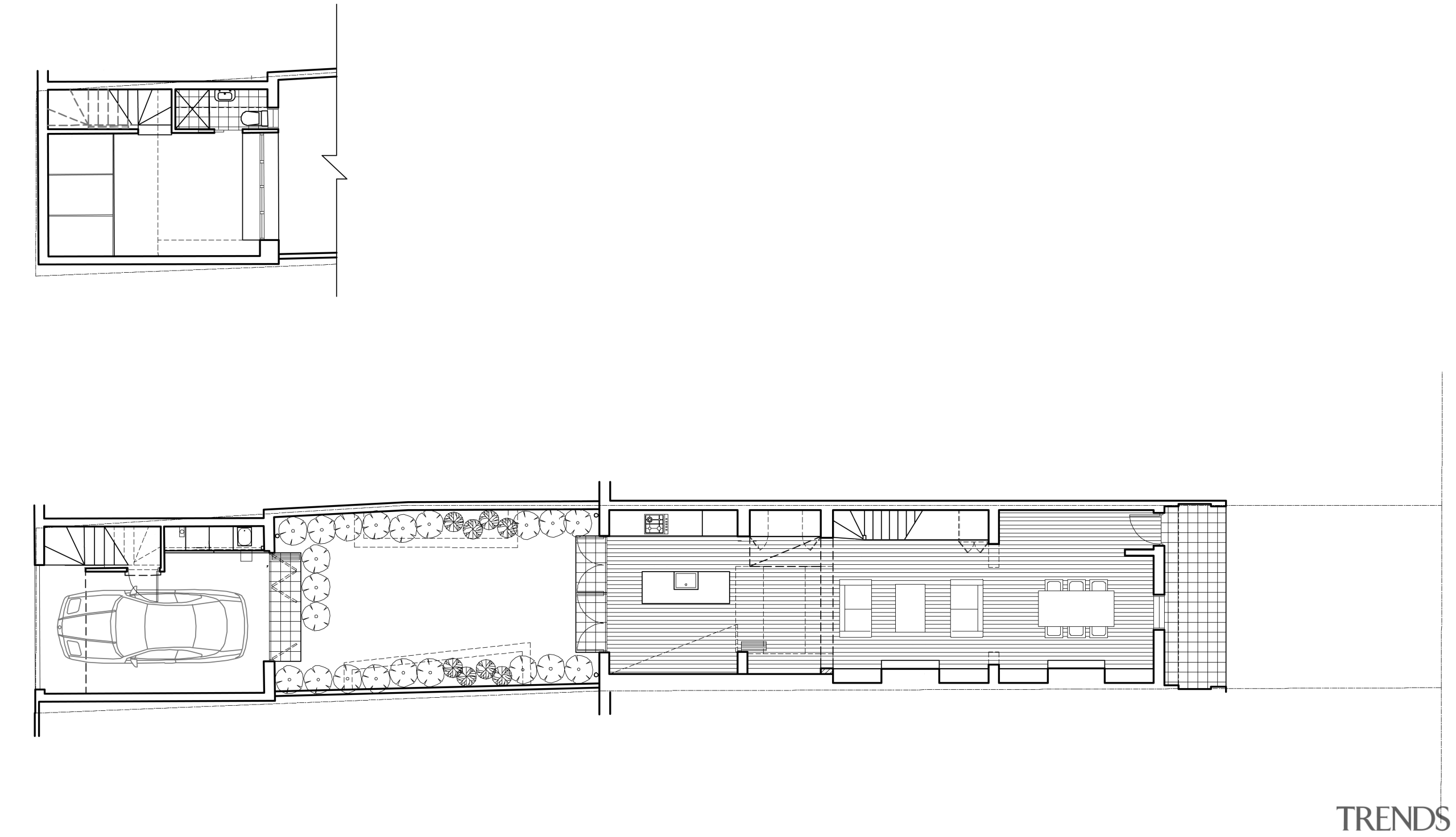
Floorplan of home was renovated by Maddalena Vienna of Vienna Design.
Associated Post
Restored Victorian terraced townhouse, by Maddalena Vienna
Trendsideas
Home kitchen bathroom commercial design
Latest Post
Ultraspace wins 2026 TIDA Australia Designer Kitchen of the Year
HuM Architects wins 2026 TIDA Australia Architect-designed Kitchen of the Year
Atelier Jones Design wins 2026 TIDA New Zealand Architectural Designer Kitchen of the Year
We know the Specialists
Latest Book
More Books >
Home Kitchen Bathroom DesignÂ