Facebook

Tweet

Help

Image 15 of 15

Proud face, open heart

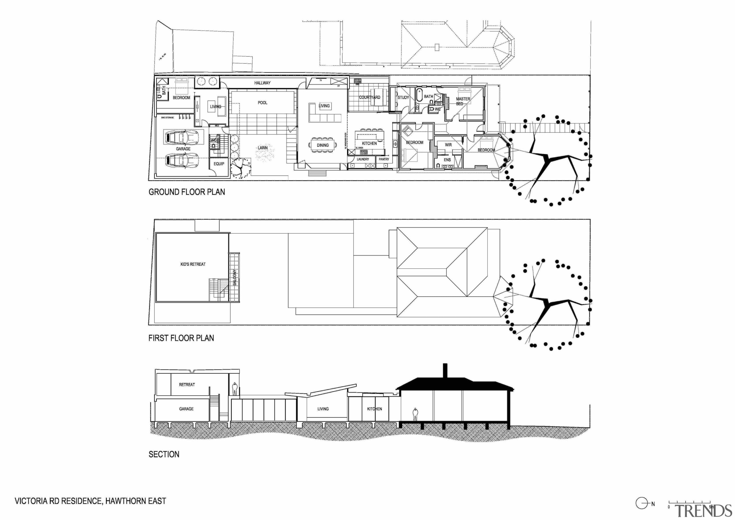
Floor plans.
- Proud face, open heart -

Associated Post

23 Feb, 2025

Home kitchen bathroom commercial design


Latest Post

29 Mar, 2026

29 Mar, 2026

29 Mar, 2026

We know the Specialists

Latest Book

TRENDS MINI COVER 4201 -

Home Kitchen Bathroom Design 

Read More