Facebook

Tweet

Help

Image 8 of 8

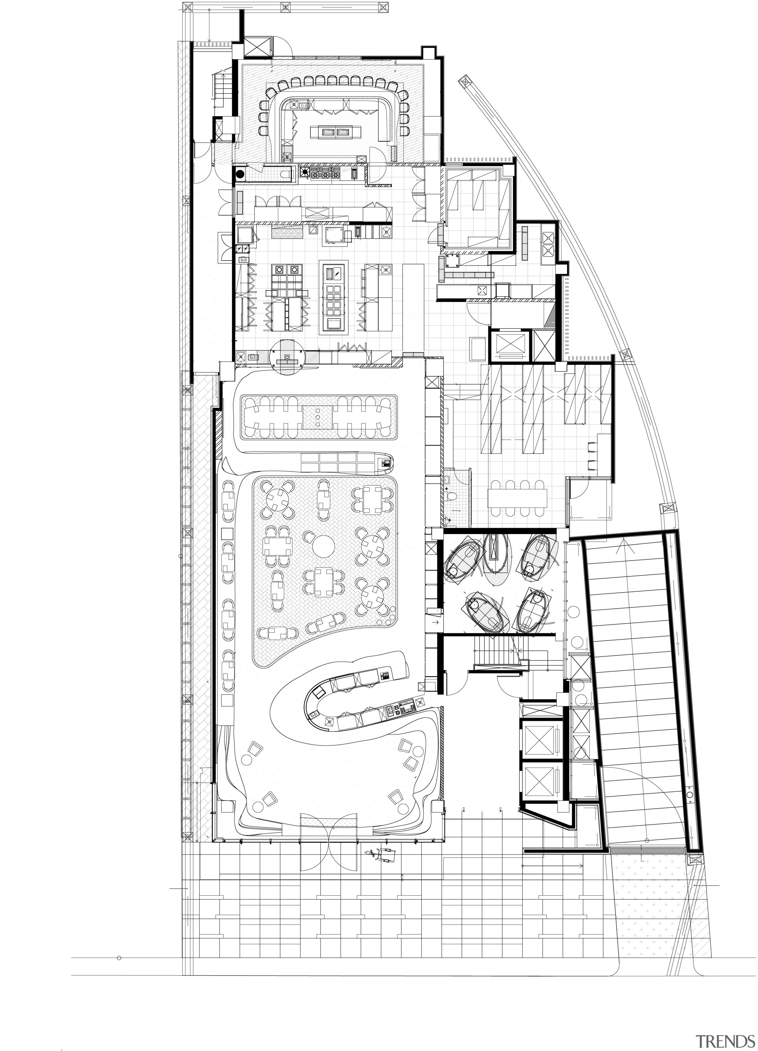
The centrepiece of Raw restaurant in Taipei is a 65m-long, sculptural wood centrepiece that wraps around the interior, forming a bar and semi-enclosing the dining spaces. The top of the sculpture appears to be suspended.

The centrepiece of Raw restaurant in Taipei is a 65m-long, sculptural wood centrepiece that wraps around the interior, forming a bar and semi-enclosing the dining spaces. The top of the sculpture appears to be suspended.

Home kitchen bathroom commercial design


Latest Post

22 Feb, 2026

22 Feb, 2026

22 Feb, 2026

We know the Specialists

Latest Book

TRENDS MINI COVER 4201 -

Home Kitchen Bathroom Design 

Read More