Facebook
Tweet
Help
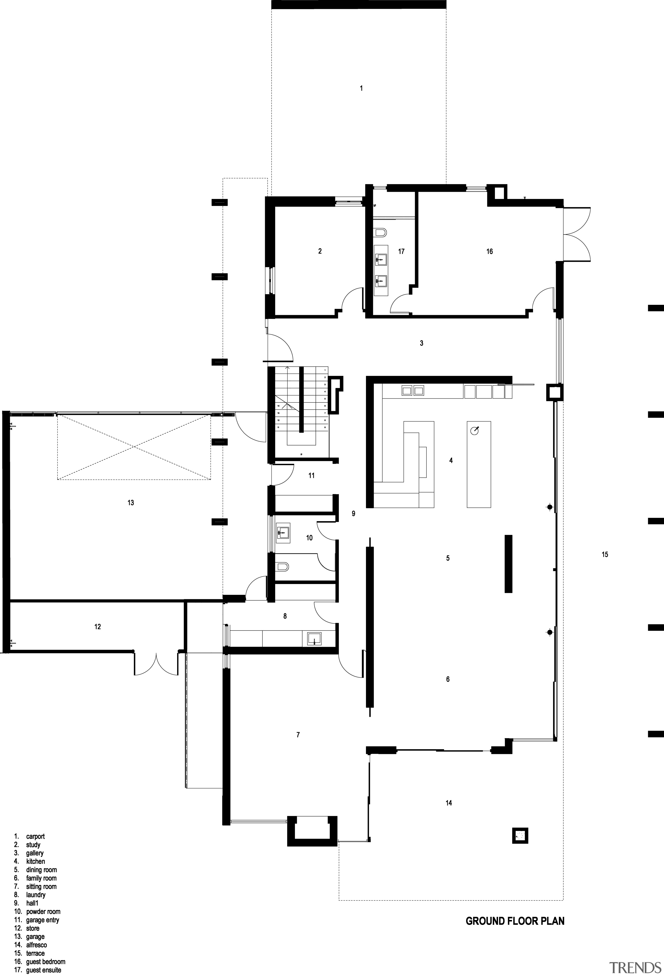
Ground floor of remodelled house designed by Rodrigues Bodycoat Architects.
Associated Post
Major renovation marries old with new delivering new home built on good bones
Trendsideas
Home kitchen bathroom commercial design
Latest Post
Wonder wall
Walnut and weatherboards
Natural feel, natural outlooks
We know the Specialists
Latest Book
More Books >
Home Kitchen Bathroom DesignÂ