Facebook

Tweet

Help

Image 1 of 13

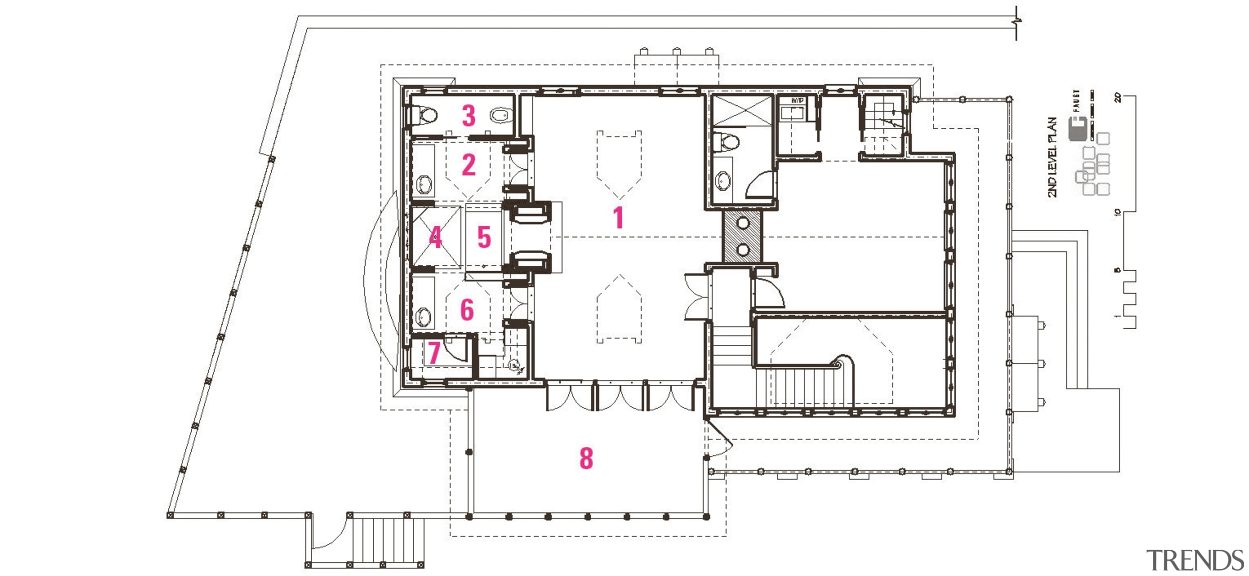
Plan of mountain vacation home

Plan of mountain vacation home - Plan of mountain vacation home - architecture | area | design | diagram | drawing | floor plan | line | plan | product design | structure | white

Associated Post

30 Dec, 2013

Home kitchen bathroom commercial design


Latest Post

26 Apr, 2026

26 Apr, 2026

26 Apr, 2026

We know the Specialists

Latest Book

TRENDS MINI COVER 4201 -

Home Kitchen Bathroom Design 

Read More