Facebook
Tweet
Help
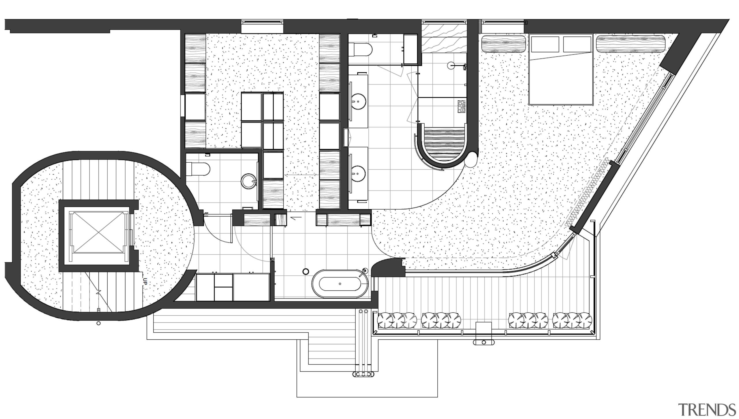
Bathroom suite plan - Curvaceous welcome -
Associated Post
Curvaceous welcome
Trendsideas
Home kitchen bathroom commercial design
Latest Post
Walk this way – garden pathways to lead your thinking
From farmhouse to farmstead
Water, water, not everywhere
We know the Specialists
Latest Book
More Books >
Home Kitchen Bathroom Design