Facebook
Tweet
Help
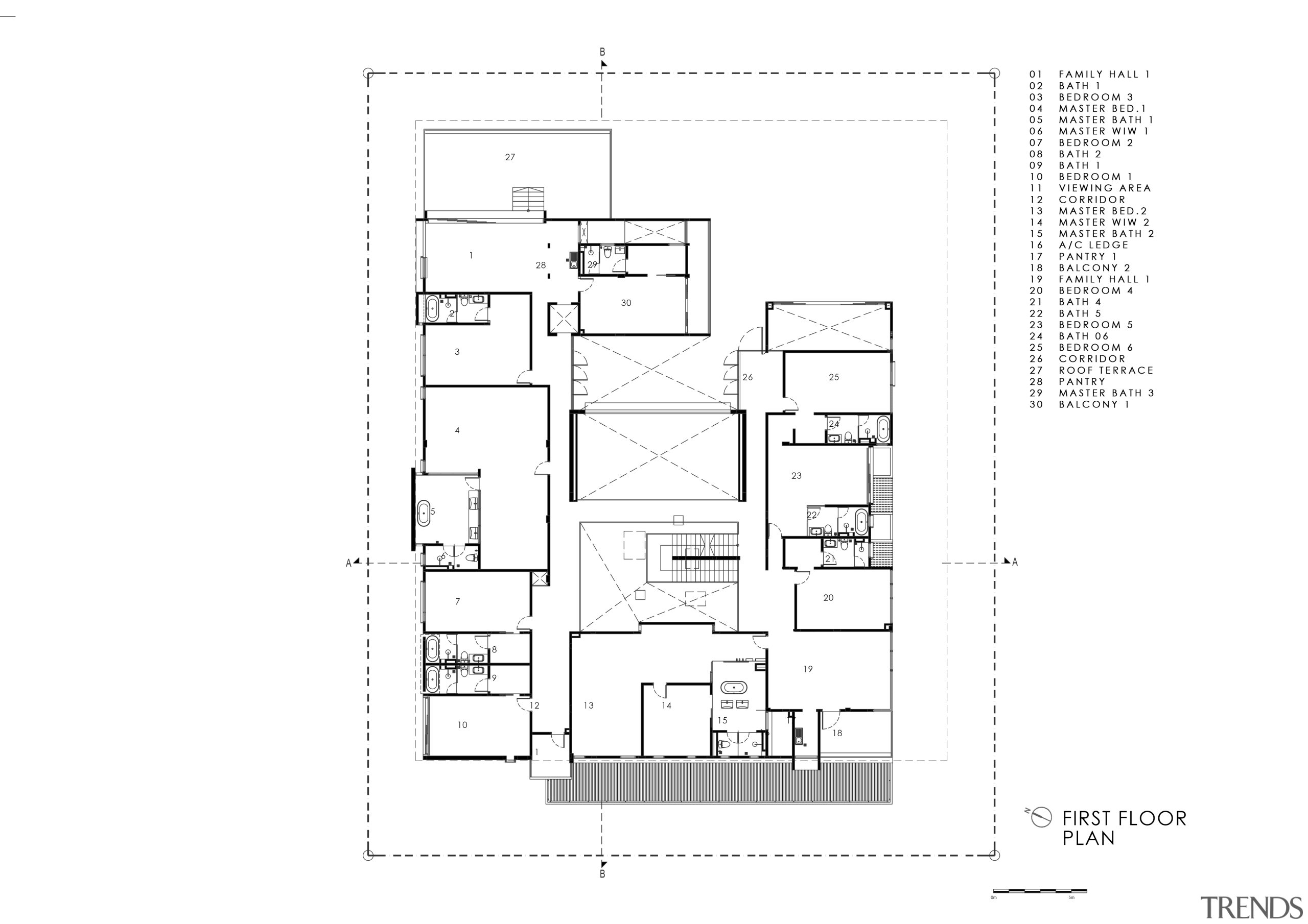
First floor plan. - Come together -
Associated Post
Come together
Trendsideas
Home kitchen bathroom commercial design
Latest Post
HuM Architects wins 2026 TIDA Australia Architect-designed Kitchen of the Year
Ultraspace wins 2026 TIDA Australia Designer Kitchen of the Year
Shane George Design wins 2026 TIDA New Zealand Designer Kitchen of the Year
We know the Specialists
Latest Book
More Books >
Home Kitchen Bathroom DesignÂ