Facebook

Tweet

Help

Image 11 of 12

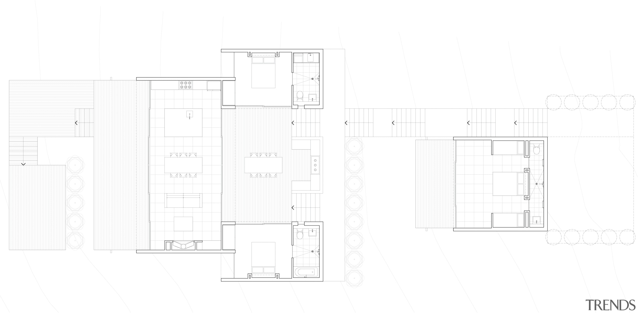
View of floor plans.

View of floor plans. - View of floor plans. - angle | architecture | area | building | design | diagram | drawing | elevation | floor plan | home | house | line | plan | product | product design | property | schematic | structure | white

Associated Post

11 Mar, 2009

Home kitchen bathroom commercial design


Latest Post

19 Apr, 2026

19 Apr, 2026

19 Apr, 2026

We know the Specialists

Latest Book

TRENDS MINI COVER 4201 -

Home Kitchen Bathroom Design 

Read More