Facebook

Tweet

Help

Image 18 of 20

Breathing fresh air into classic design

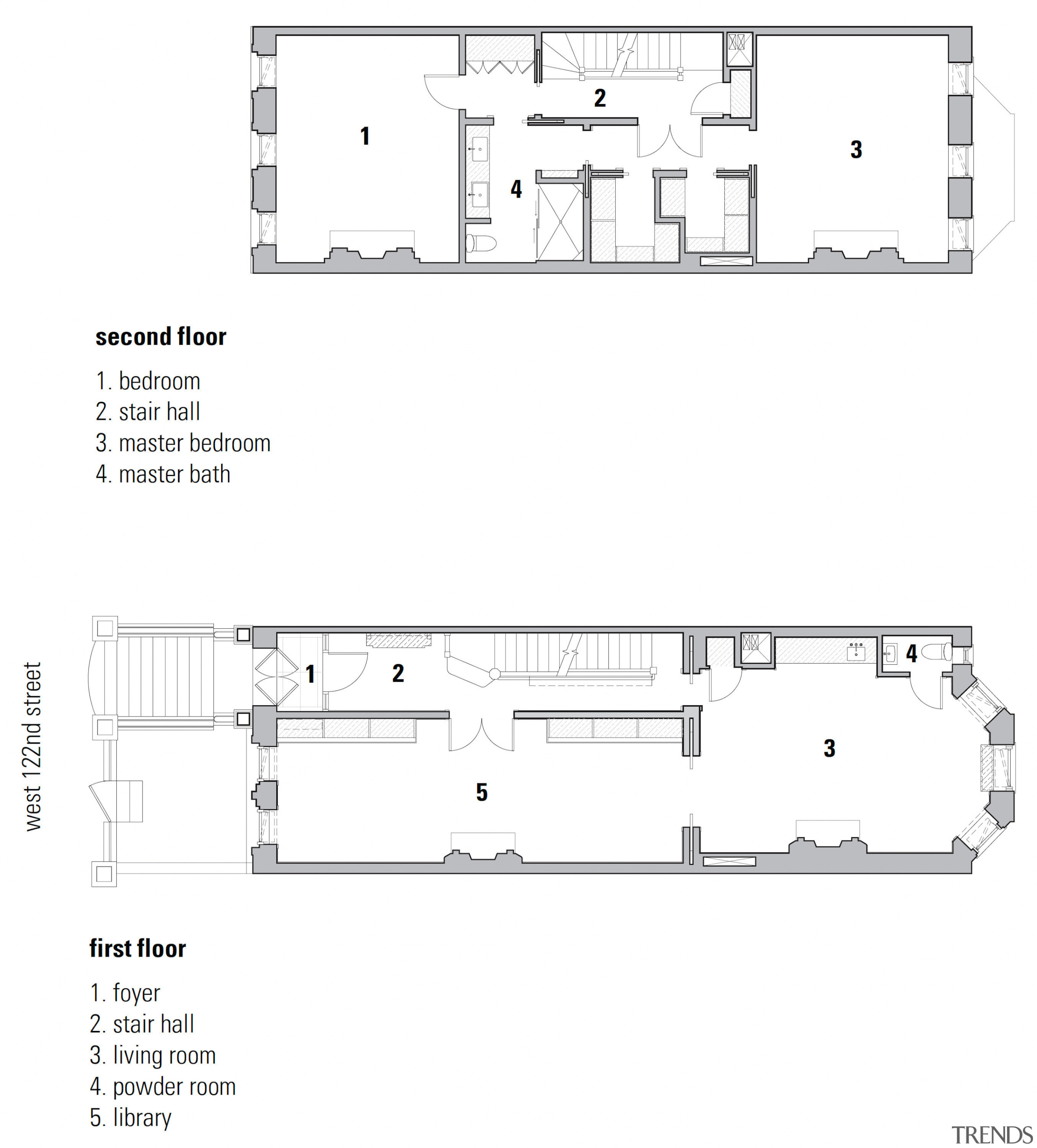
First and second floor plans.
- Breathing fresh air into classic design -

Associated Post

27 Mar, 2022

Home kitchen bathroom commercial design


Latest Post

22 Mar, 2026

22 Mar, 2026

22 Mar, 2026

We know the Specialists

Latest Book

TRENDS MINI COVER 4201 -

Home Kitchen Bathroom Design 

Read More