Facebook

Tweet

Help

Image 11 of 11

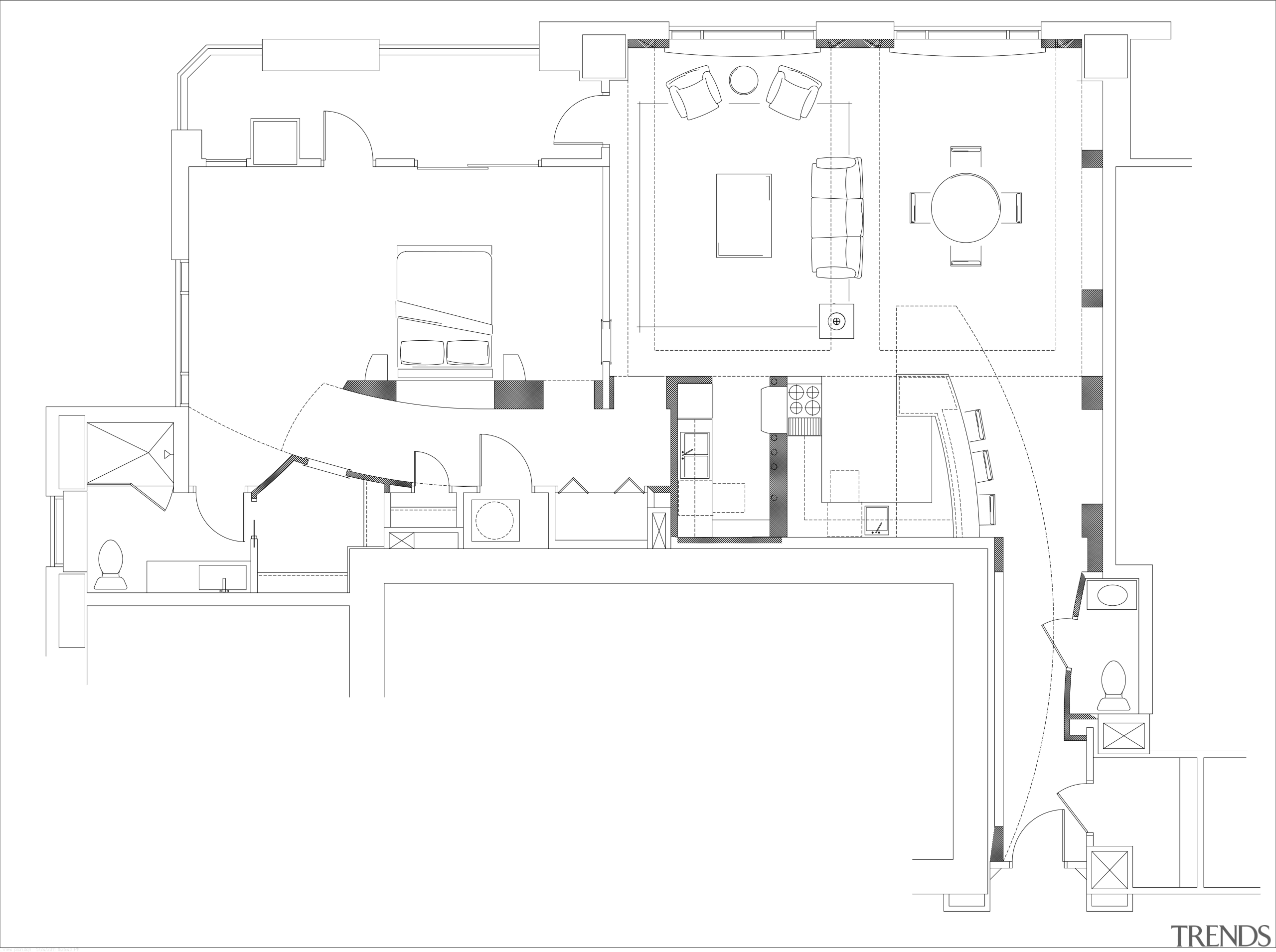
Remodeled by Woody Vaughan of Norwood Architects, this kitchen features an extensive use of timber, wall tiling and granite countertops. This is the new floor plan.

Remodeled by Woody Vaughan of Norwood Architects, this kitchen features an extensive use of timber, wall tiling and granite countertops. This is the new floor plan.

Home kitchen bathroom commercial design


Latest Post

22 Mar, 2026

22 Mar, 2026

22 Mar, 2026

We know the Specialists

Latest Book

TRENDS MINI COVER 4201 -

Home Kitchen Bathroom Design 

Read More