Facebook

Tweet

Help

Image 13 of 18

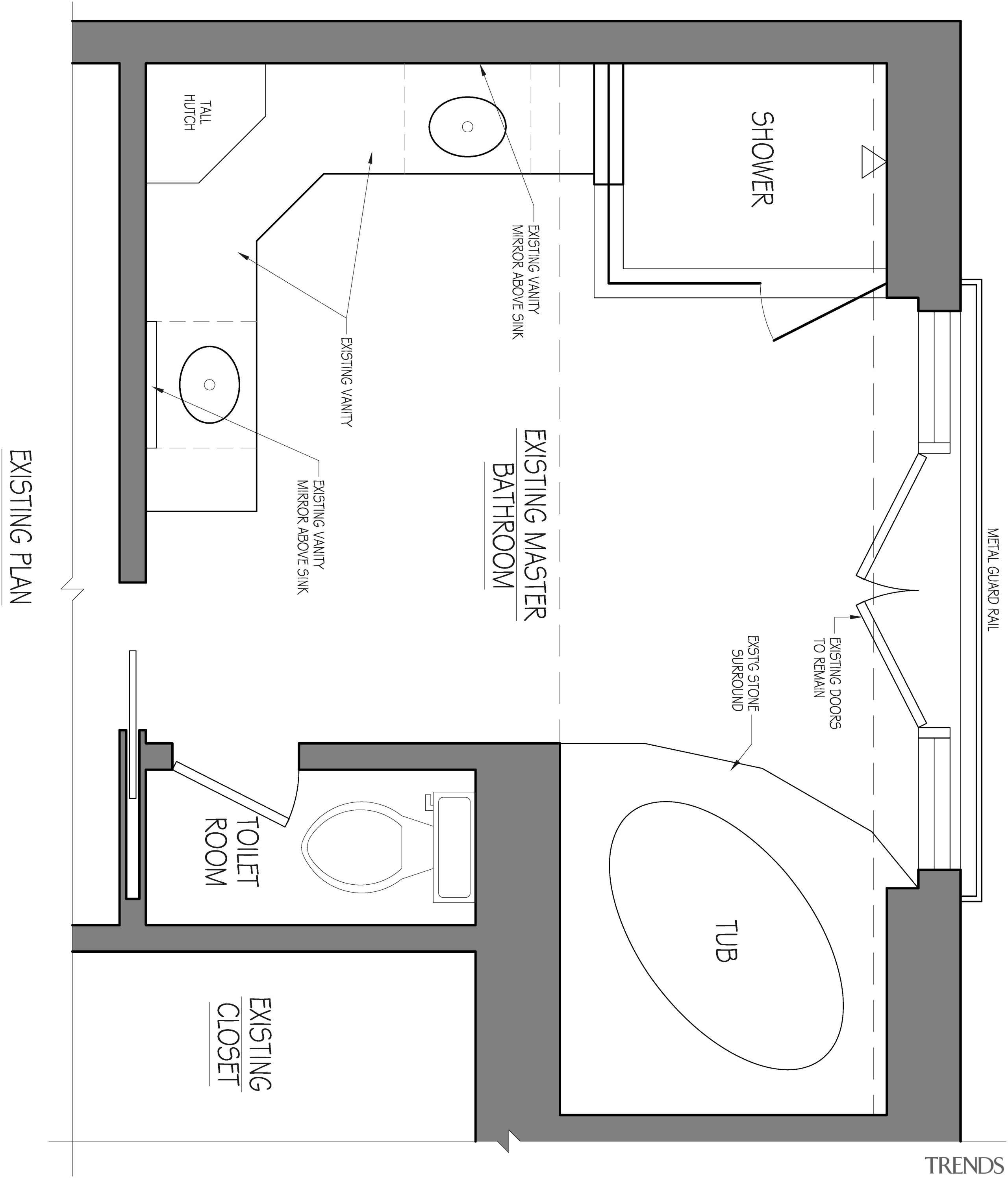
This all-white bathroom replaces a dated master bathroom with fully fitted cabinets. The owners wanted it to be a feminine bathroom – one of two in the master suite. Furniture-style cabinetry, including a bow-front vanity, enhance the look. Crystal

This all-white bathroom replaces a dated master bathroom with fully fitted cabinets. The owners wanted it to be a feminine bathroom one of two in the master suite. Furniture-style cabinetry, including a bow-front vanity, enhance the look. Crystal knobs on the cabinets and faucets add a little sparkle and glamour.

Associated Post

31 Mar, 2014

Home kitchen bathroom commercial design


Latest Post

31 May, 2026

31 May, 2026

31 May, 2026

We know the Specialists

Latest Book

TRENDS MINI COVER 4202 -

Home Kitchen Bathroom Design 

Read More