Facebook

Tweet

Help

Image 11 of 14

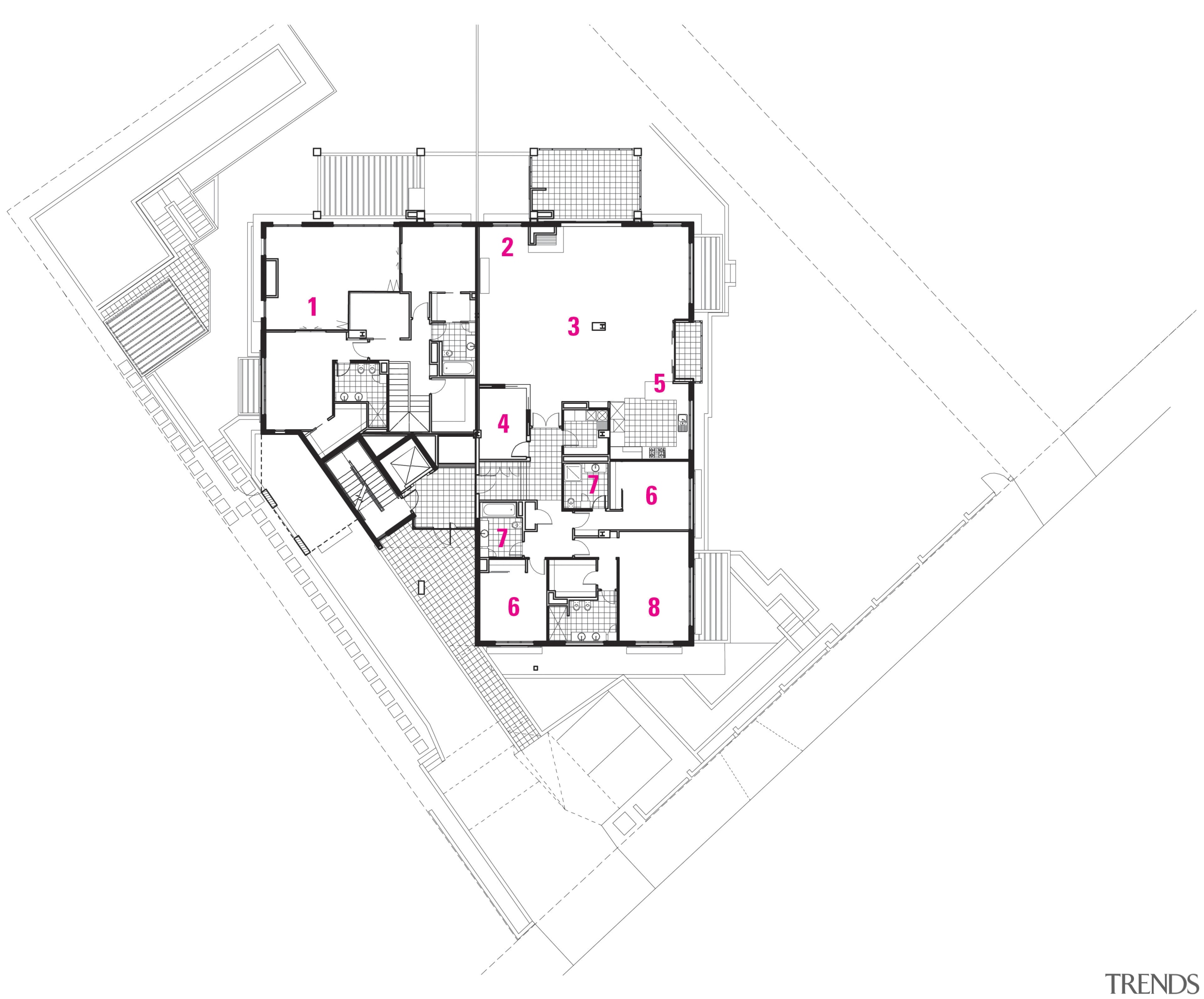
Plan of apartment layout.

Plan of apartment layout. - Plan of apartment layout. - angle | architecture | area | design | diagram | drawing | floor plan | line | plan | product design | schematic | structure | white

Associated Post

15 Jun, 2005

Home kitchen bathroom commercial design


Latest Post

22 Feb, 2026

22 Feb, 2026

22 Feb, 2026

We know the Specialists

Latest Book

TRENDS MINI COVER 4201 -

Home Kitchen Bathroom Design 

Read More