Facebook

Tweet

Help

Image 9 of 10

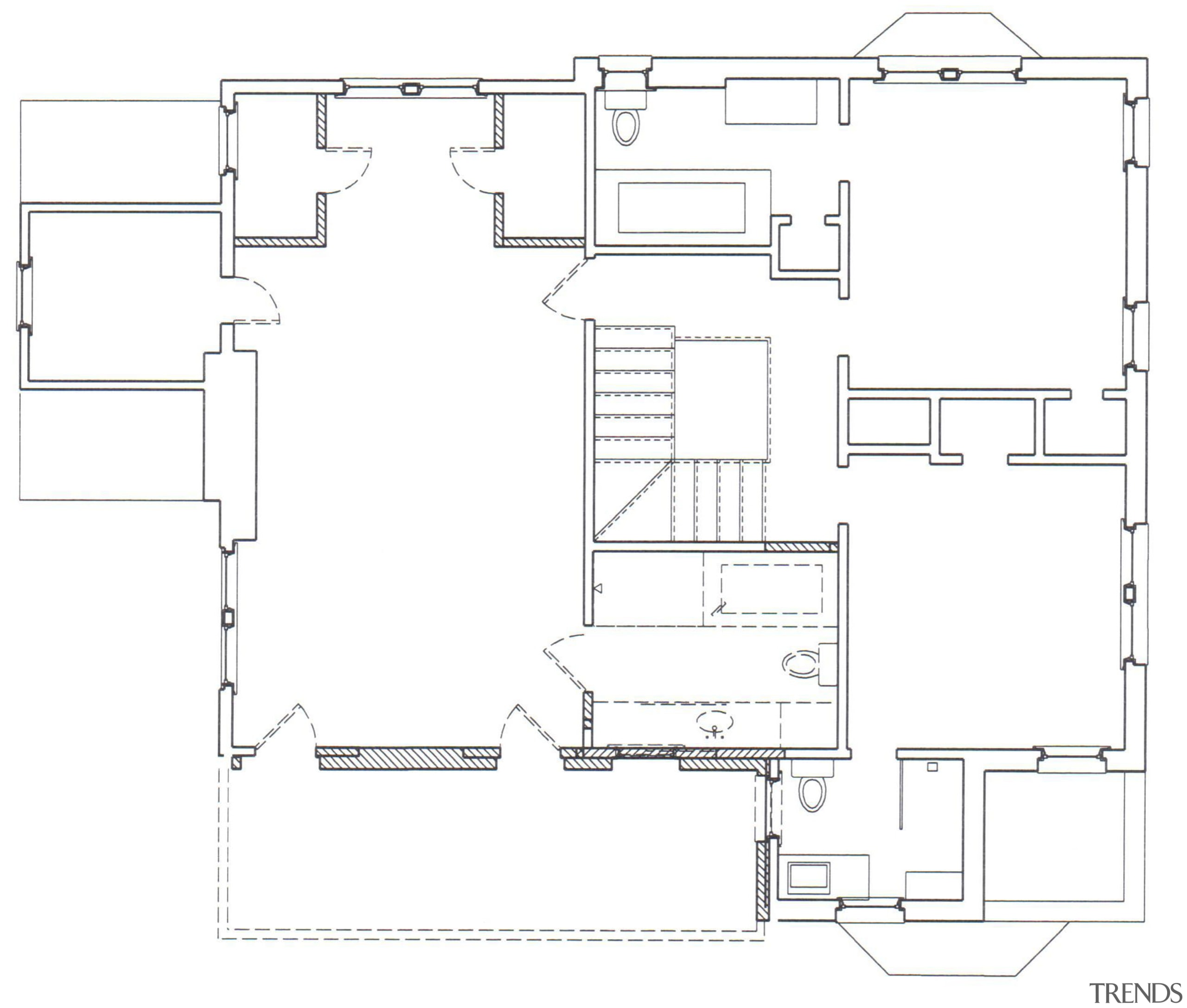
This master suite's architects were James Hess and Julia Stainback. Here is the floor plan.

This master suite's architects were James Hess and Julia Stainback. Here is the floor plan.

Home kitchen bathroom commercial design


Latest Post

08 Mar, 2026

08 Mar, 2026

08 Mar, 2026

We know the Specialists

Latest Book

TRENDS MINI COVER 4201 -

Home Kitchen Bathroom Design 

Read More