Facebook
Tweet
Help
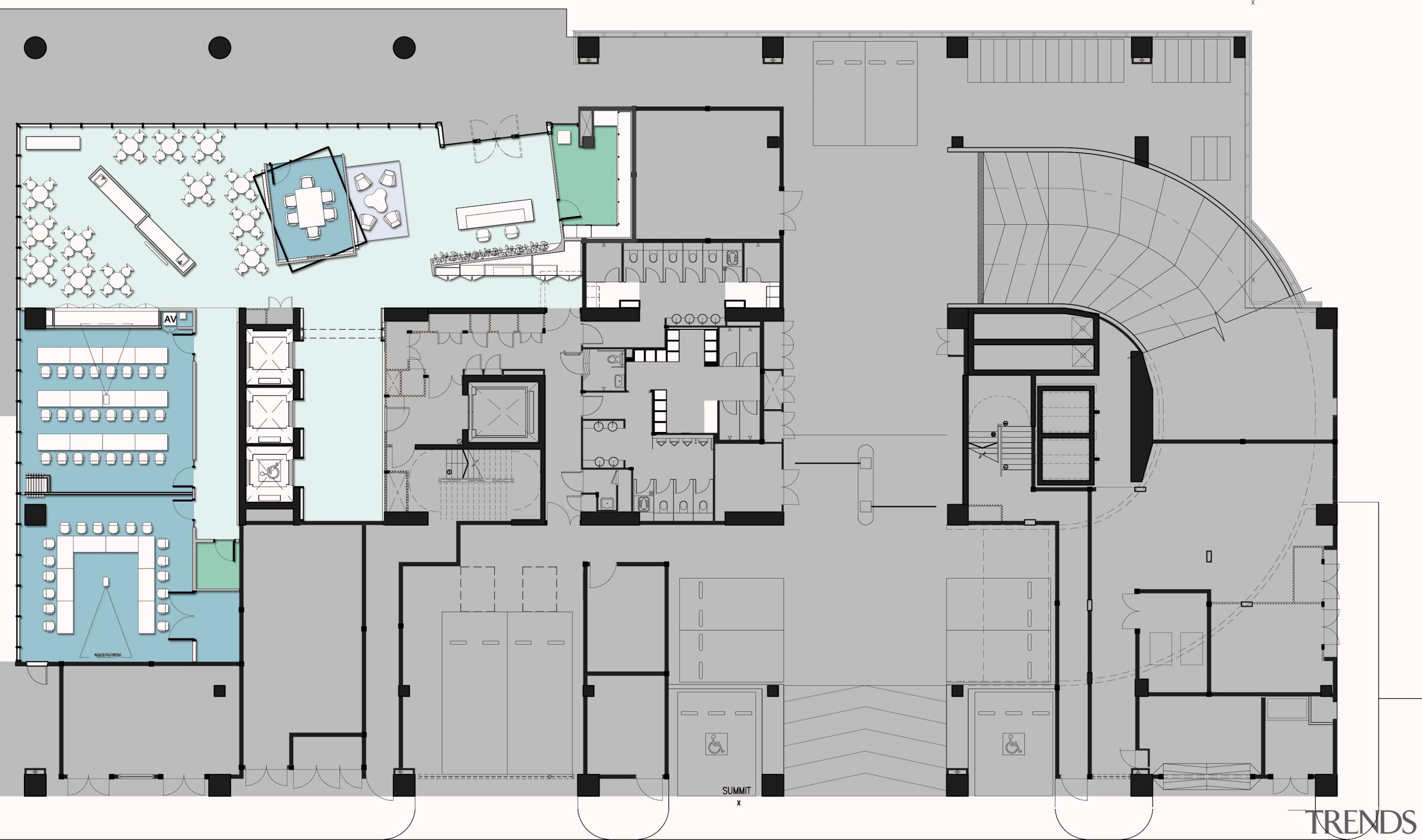
Ground floor plan, DNV GL office, by DCA, Singapore
Associated Post
Office fit out for DNV GL Technology Centre, Singapore, by Aedas Interiors
Trendsideas
Home kitchen bathroom commercial design
Latest Post
9 tile shapes and finishes that think outside the square
Reflection and repose
White cloud, blue sky
We know the Specialists
Latest Book
More Books >
Home Kitchen Bathroom DesignÂ