Facebook

Tweet

Help

Image 1 of 8

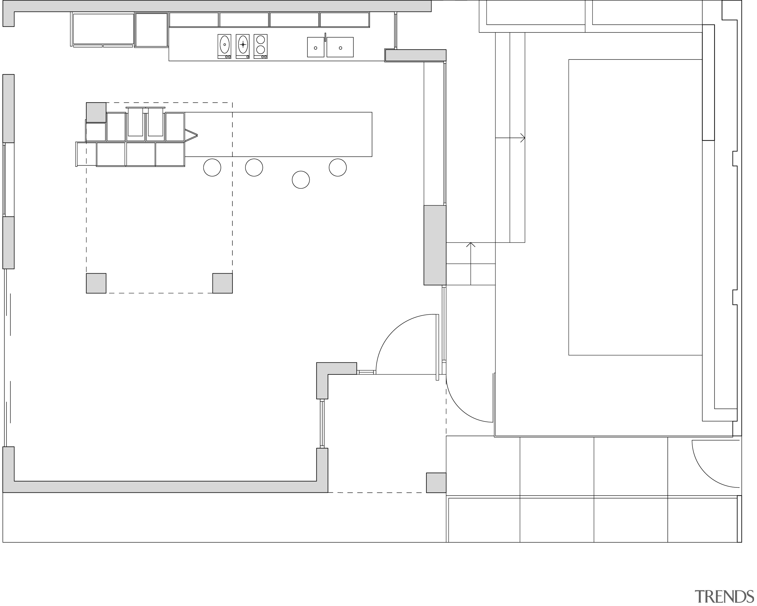
Architectural view of this modern kitchen

Architectural view of this modern kitchen - Architectural view of this modern kitchen - angle | architecture | area | black and white | design | diagram | drawing | floor plan | font | line | plan | product | product design | structure | text | white | white

Associated Post

28 Jul, 2010

Home kitchen bathroom commercial design


Latest Post

29 Mar, 2026

29 Mar, 2026

29 Mar, 2026

We know the Specialists

Latest Book

TRENDS MINI COVER 4201 -

Home Kitchen Bathroom Design 

Read More