Facebook
Tweet
Help
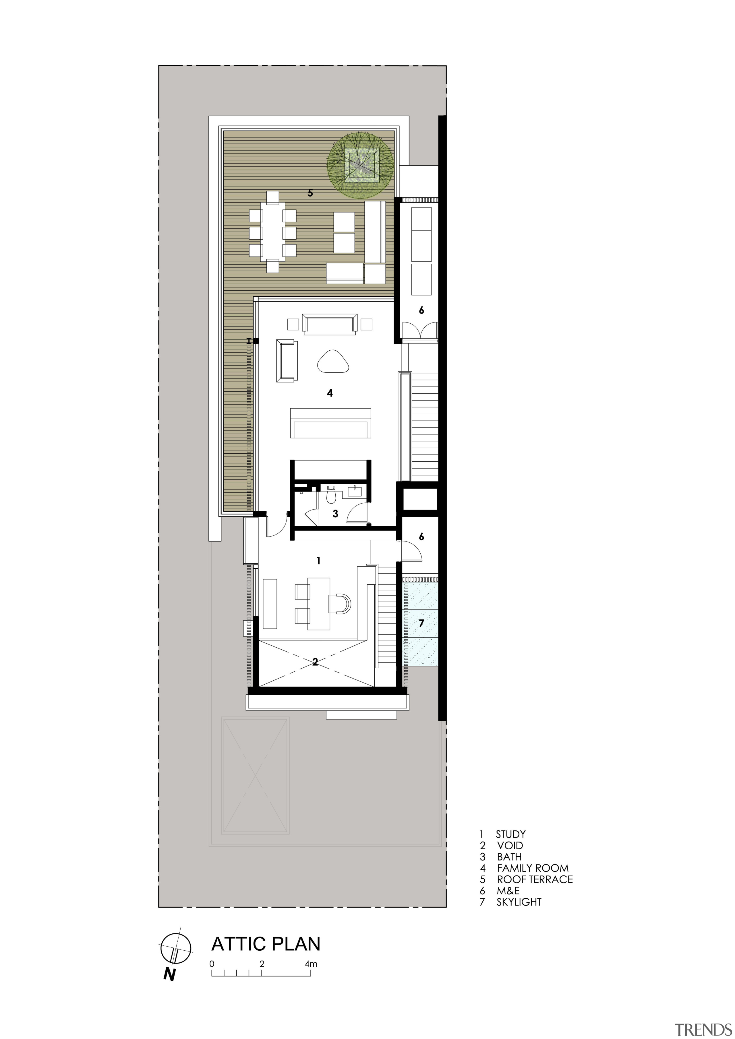
Plan of level 3 of contemporary new semi-detached house with attic and rooftop terrace
Associated Post
Contemporary new semi-detached house with attic level and rooftop terrace
Trendsideas
Home kitchen bathroom commercial design
Latest Post
2026 TIDA New Zealand Bathrooms – Entry open
2026 TIDA Australia Bathrooms – Entry open
Gilded grove
We know the Specialists
Latest Book
More Books >
Home Kitchen Bathroom Design