Facebook

Tweet

Help

Image 8 of 8

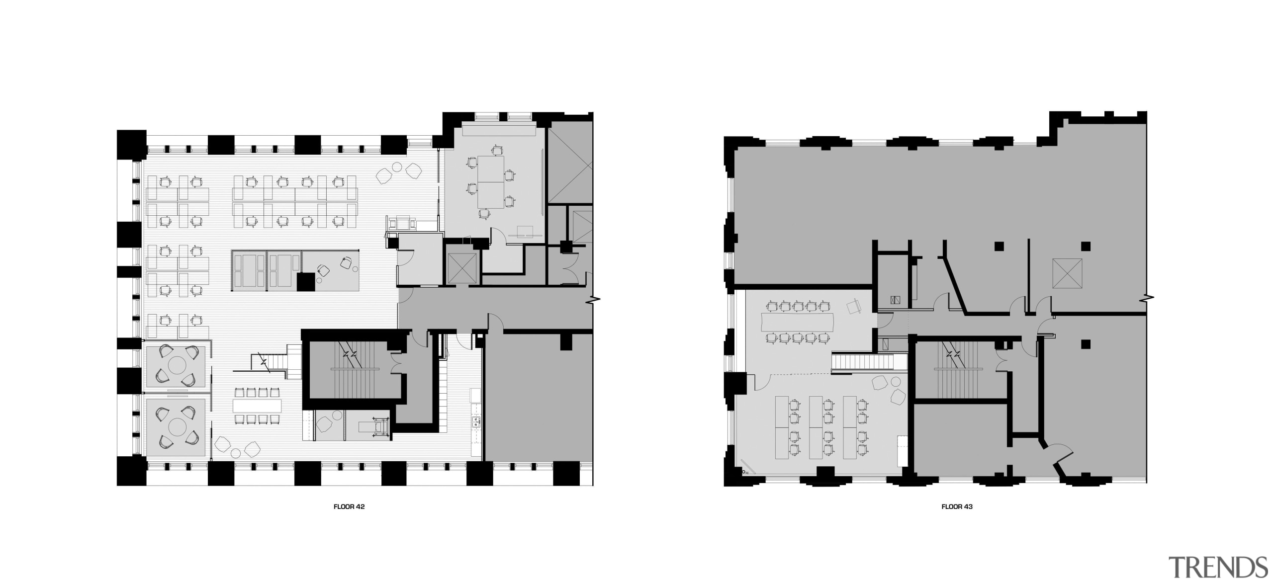
This new Kimberly-Clark office in Chicago occupies much of the floor space on the upper two penthouse levels of an Art Deco building. The design is by architect Tom Zurowski of Eastlake Studio.

This new Kimberly-Clark office in Chicago occupies much of the floor space on the upper two penthouse levels of an Art Deco building. The design is by architect Tom Zurowski of Eastlake Studio.

Home kitchen bathroom commercial design


Latest Post

24 May, 2026

24 May, 2026

24 May, 2026

We know the Specialists

Latest Book

TRENDS MINI COVER 4202 -

Home Kitchen Bathroom Design 

Read More