Facebook

Tweet

Help

Image 11 of 12

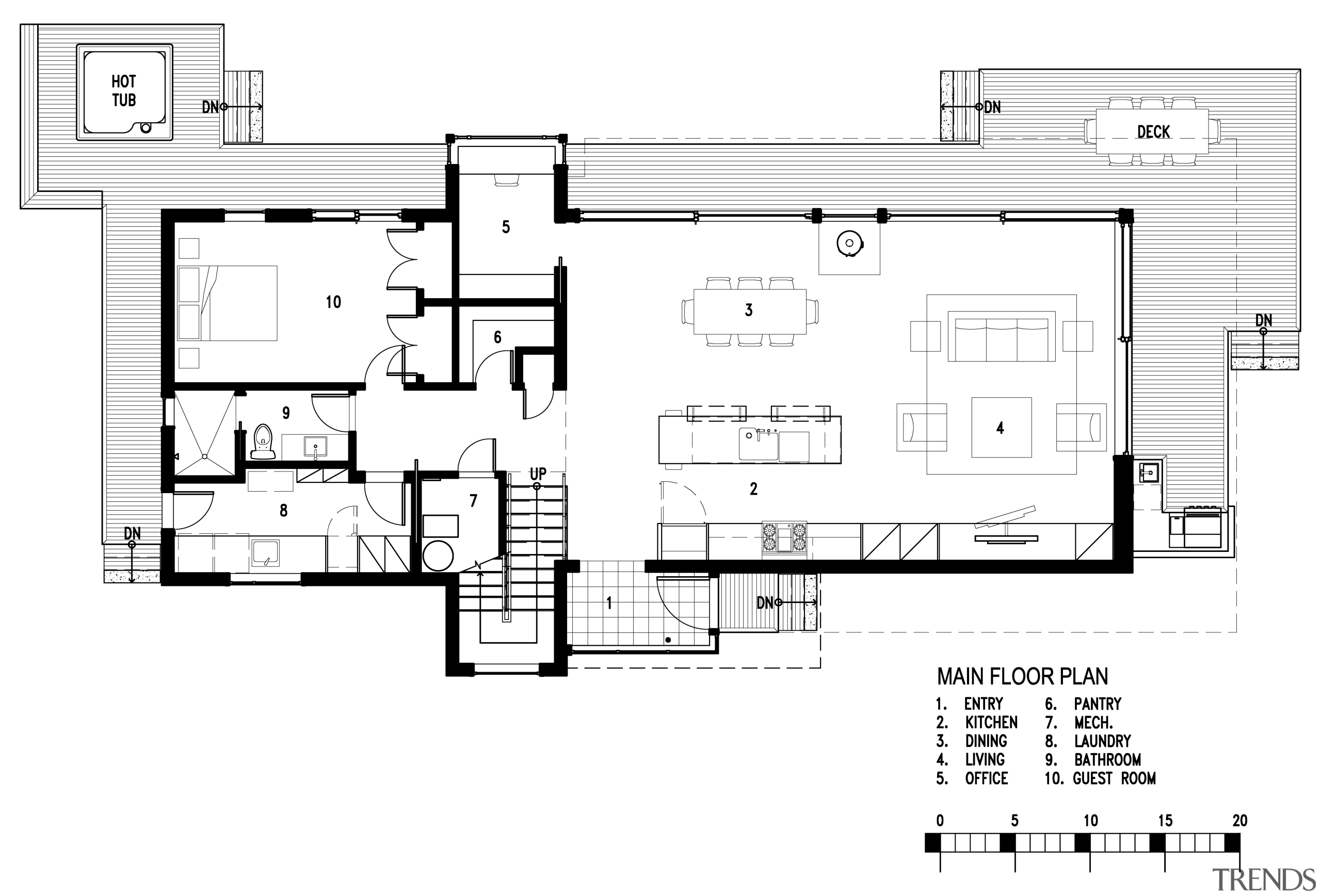
Plan of contemporary new waterfront house designed by architect Nils Finne.

Plan of contemporary new waterfront house designed by architect Nils Finne.

Associated Post

31 Jan, 2014

Home kitchen bathroom commercial design


Latest Post

24 May, 2026

24 May, 2026

24 May, 2026

We know the Specialists

Latest Book

TRENDS MINI COVER 4202 -

Home Kitchen Bathroom Design 

Read More