Facebook

Tweet

Help

Image 7 of 10

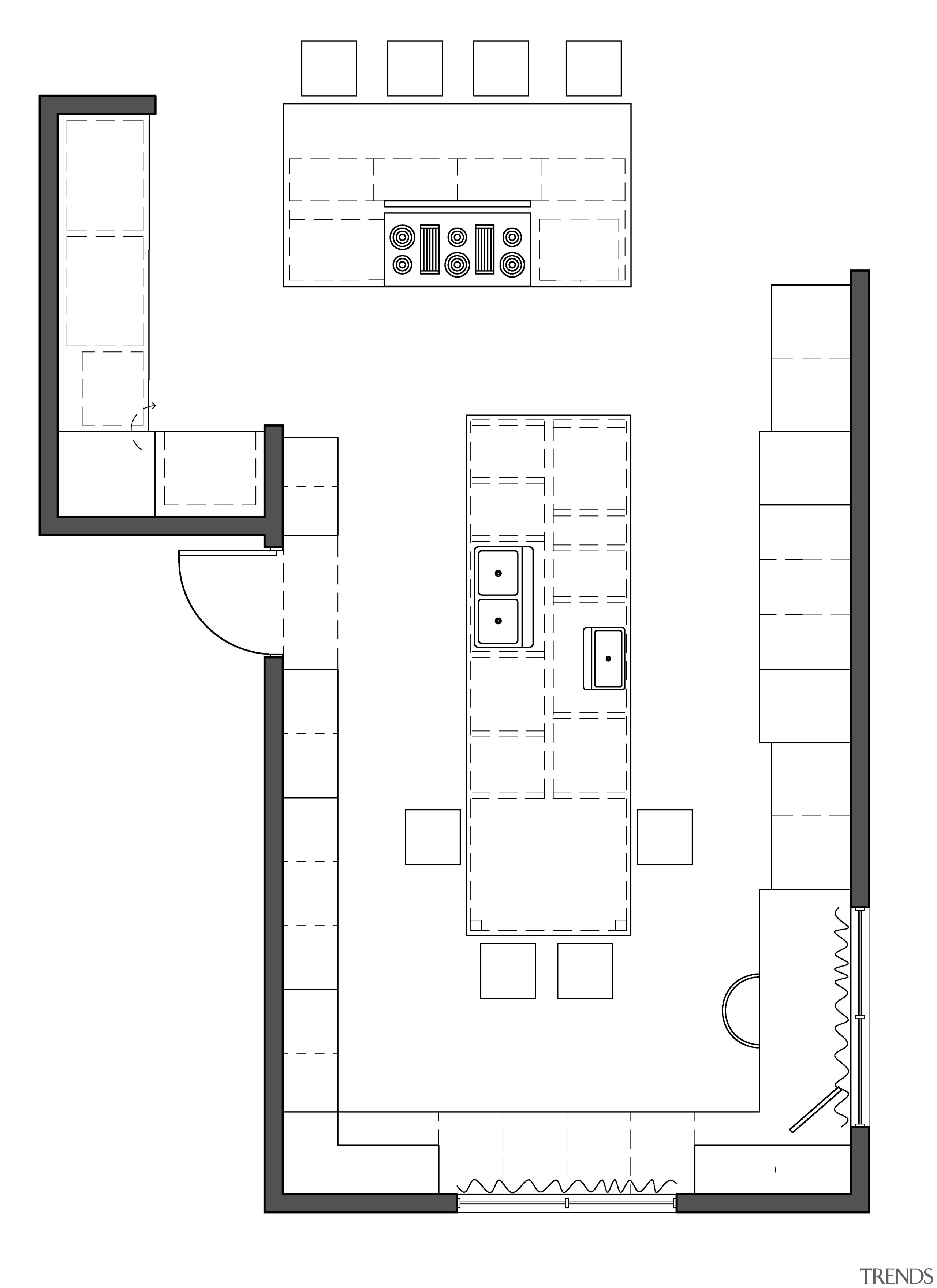
Plan of traditional white kitchen design by Jamie Herzlinger

Plan of traditional white kitchen design by Jamie Herzlinger

Associated Post

30 May, 2014

Home kitchen bathroom commercial design


Latest Post

29 Mar, 2026

29 Mar, 2026

29 Mar, 2026

We know the Specialists

Latest Book

TRENDS MINI COVER 4201 -

Home Kitchen Bathroom Design 

Read More