Facebook

Tweet

Help

Image 14 of 14

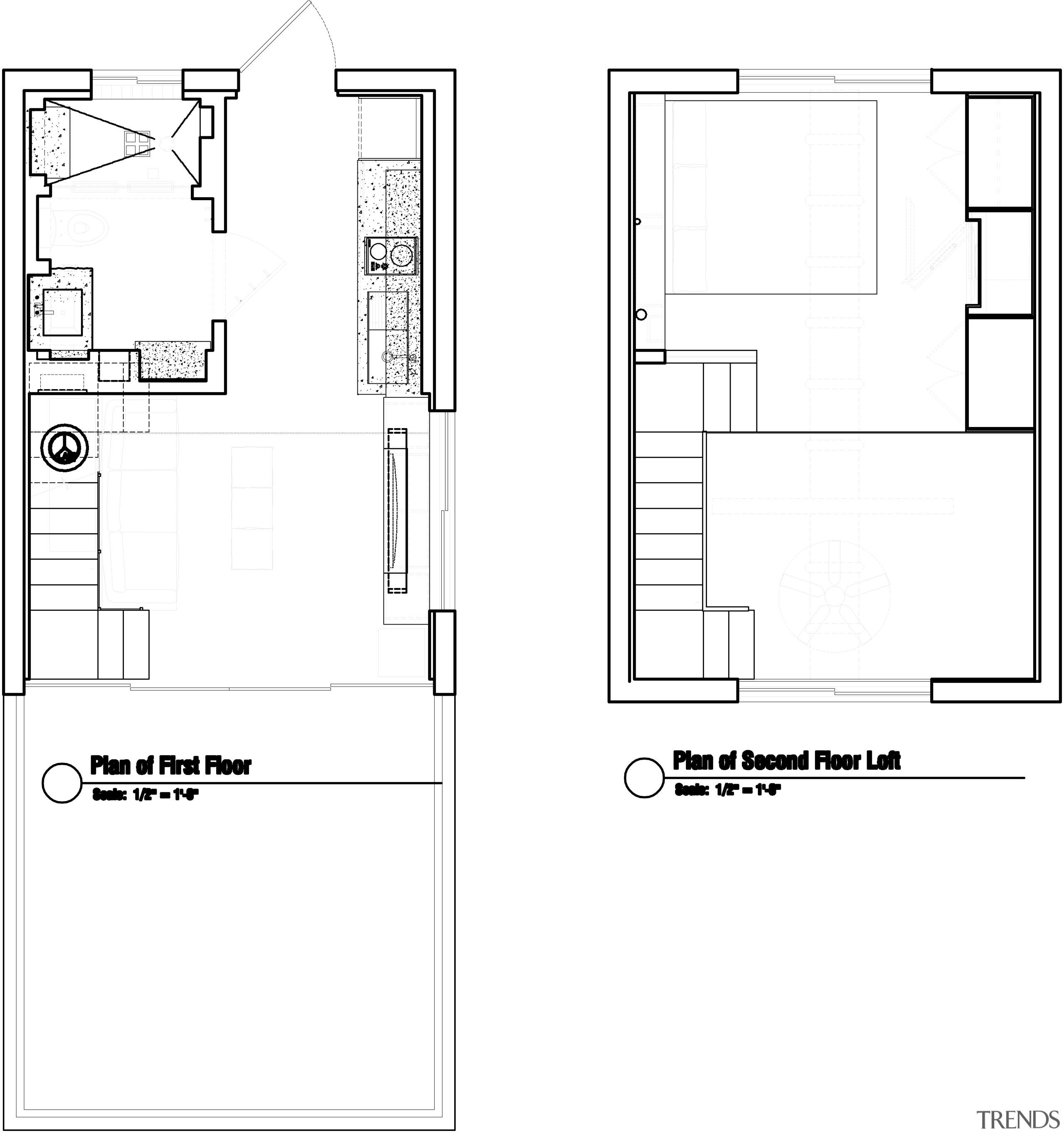
This homes' kitchen was designed by Mick De Giulio of De Giulio Kitchen Design. The architect was Jose Carlo and the interior designer was Janet McCann of Janet McCann associates. A view of the floor plan.

This homes' kitchen was designed by Mick De Giulio of De Giulio Kitchen Design. The architect was Jose Carlo and the interior designer was Janet McCann of Janet McCann associates. A view of the floor plan.

Home kitchen bathroom commercial design


Latest Post

19 Apr, 2026

19 Apr, 2026

19 Apr, 2026

We know the Specialists

Latest Book

TRENDS MINI COVER 4201 -

Home Kitchen Bathroom Design 

Read More