Facebook
Tweet
Help
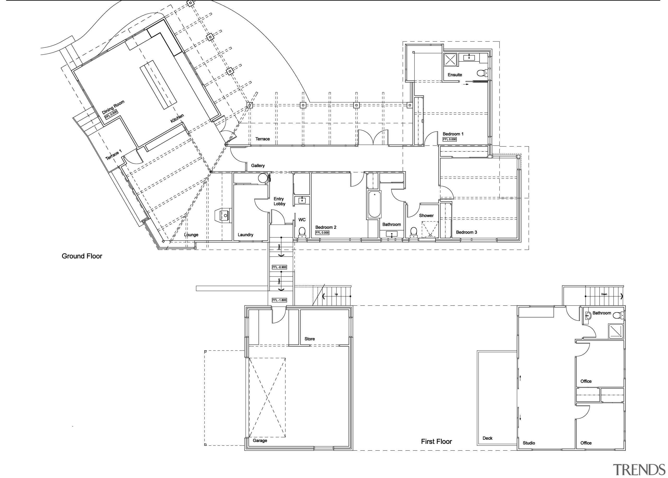
plans wide-ranging renovation by Mason & Wales Architects
Associated Post
Peak performance alpine remodel by Mason & Wales Architects
Trendsideas
Home kitchen bathroom commercial design
Latest Post
Best of both worlds: Behind the scenes of an award-winning bathroom
Tropical escape
Emotion through engineering
We know the Specialists
Latest Book
More Books >
Home Kitchen Bathroom Design