Facebook

Tweet

Help

Image 7 of 7

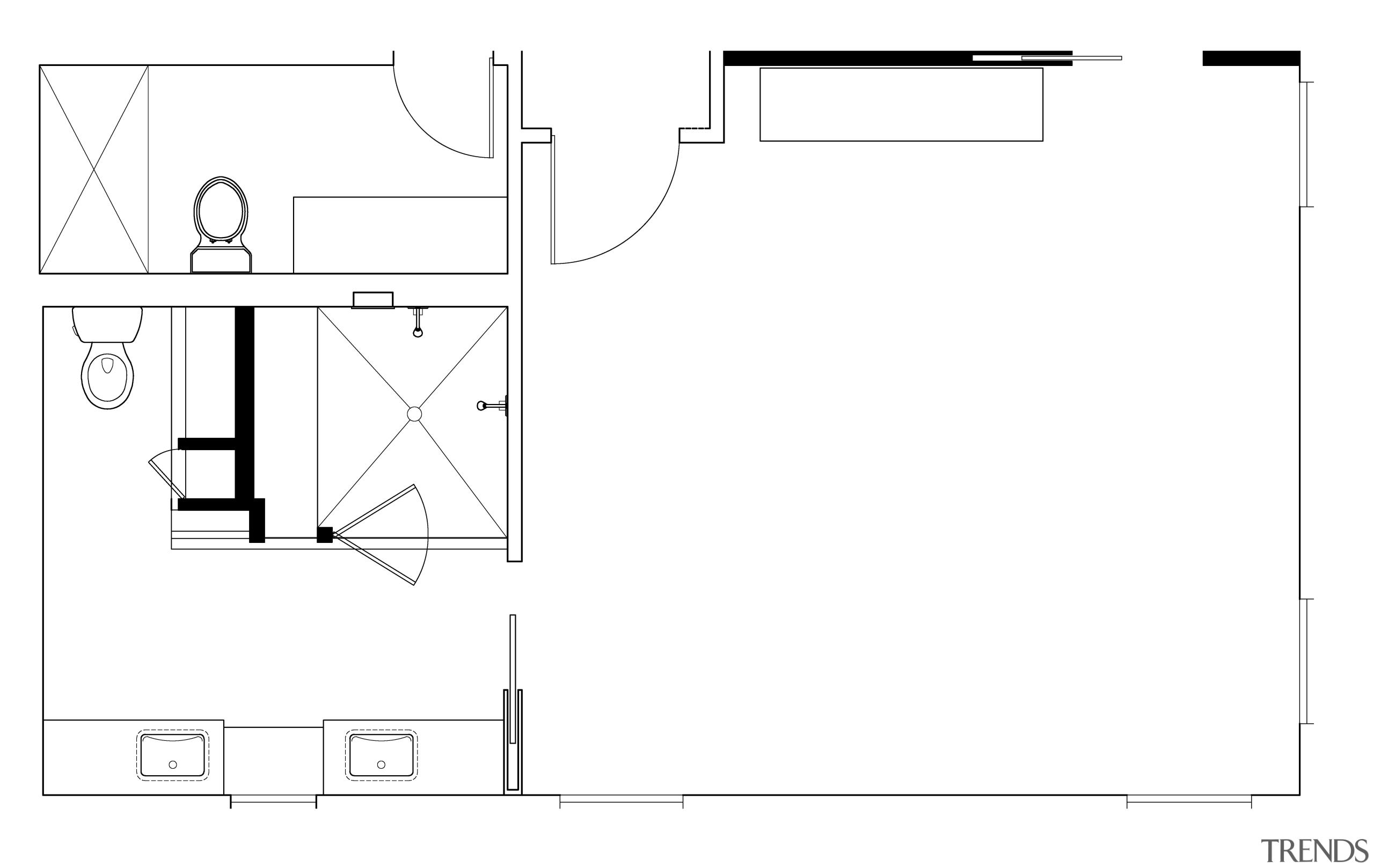
master bathroom plan of home owned by Susan Rossie of Susan Fredman Design Group.

master bathroom plan of home owned by Susan Rossie of Susan Fredman Design Group.

Home kitchen bathroom commercial design


Latest Post

08 Mar, 2026

08 Mar, 2026

08 Mar, 2026

We know the Specialists

Latest Book

TRENDS MINI COVER 4201 -

Home Kitchen Bathroom Design 

Read More